EasyManua.ls Logo

LABEL-AIRE Write-up 3138NV-DAT - Page 51

LABEL-AIRE Write-up 3138NV-DAT
53 pages
Print Icon
To Next Page IconTo Next Page
To Next Page IconTo Next Page
To Previous Page IconTo Previous Page
To Previous Page IconTo Previous Page
Loading...
51
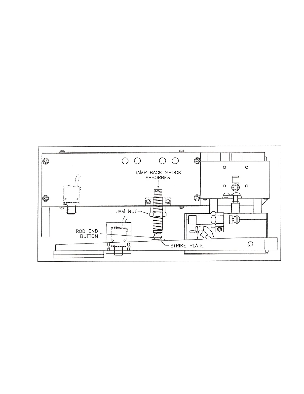
TAMP BACK SHOCK ABSORBER
1.Disconnectthecompressedairservice.
2.Pullthetampassemblytotheextendedposition.
3.Refertofigure20.Loosenthetampbackshockabsorberjamnut.
4.Threadtheshockabsorbercompletelyoutofthemountingbracket.
5.Loosenthelockingsetscrew¼to½turnontheshockabsorbersettingdial.
NOTE: DO NOT completely remove the set screw. There is a nut plate inside the shock
absorber that may be irretrievable
Figure20TampBackShockAbsorber
6.Setthecushioningsettingdialto9.Lockthesetscrew.
7.Threadtheshockabsorberintothemountingbracket.Donottightenthejamnut.
8. Manuallyretractthetampassembly.Adjustthepositionoftheshockabsorbersothatthe
fullyretractedtamppadhasretractedpasttheprinterpeelerbarby1to2mmwhenthe
shockabsorberrodendbuttoncontactstheshockabsorberbarrel.Tightenthejamnutin
position.