EasyManua.ls Logo

Lamtec ETAMATIC S - Connection Diagrams

Lamtec ETAMATIC S
152 pages
Print Icon
To Next Page IconTo Next Page
To Next Page IconTo Next Page
To Previous Page IconTo Previous Page
To Previous Page IconTo Previous Page
Loading...
108
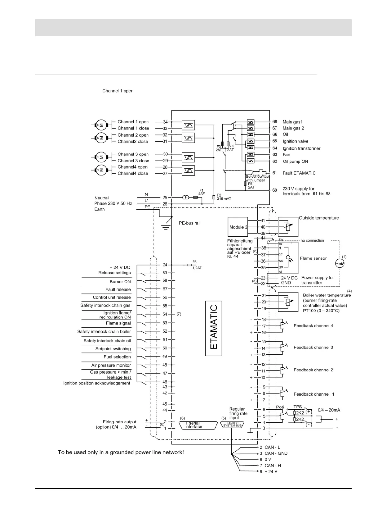
9 Appendix
9.8 Connection Diagrams

Table of Contents

Other manuals for Lamtec ETAMATIC S

Related product manuals