EasyManua.ls Logo

Lauda IN 280 XT - Page 28

Default Icon
200 pages
Print Icon
To Next Page IconTo Next Page
To Next Page IconTo Next Page
To Previous Page IconTo Previous Page
To Previous Page IconTo Previous Page
Loading...
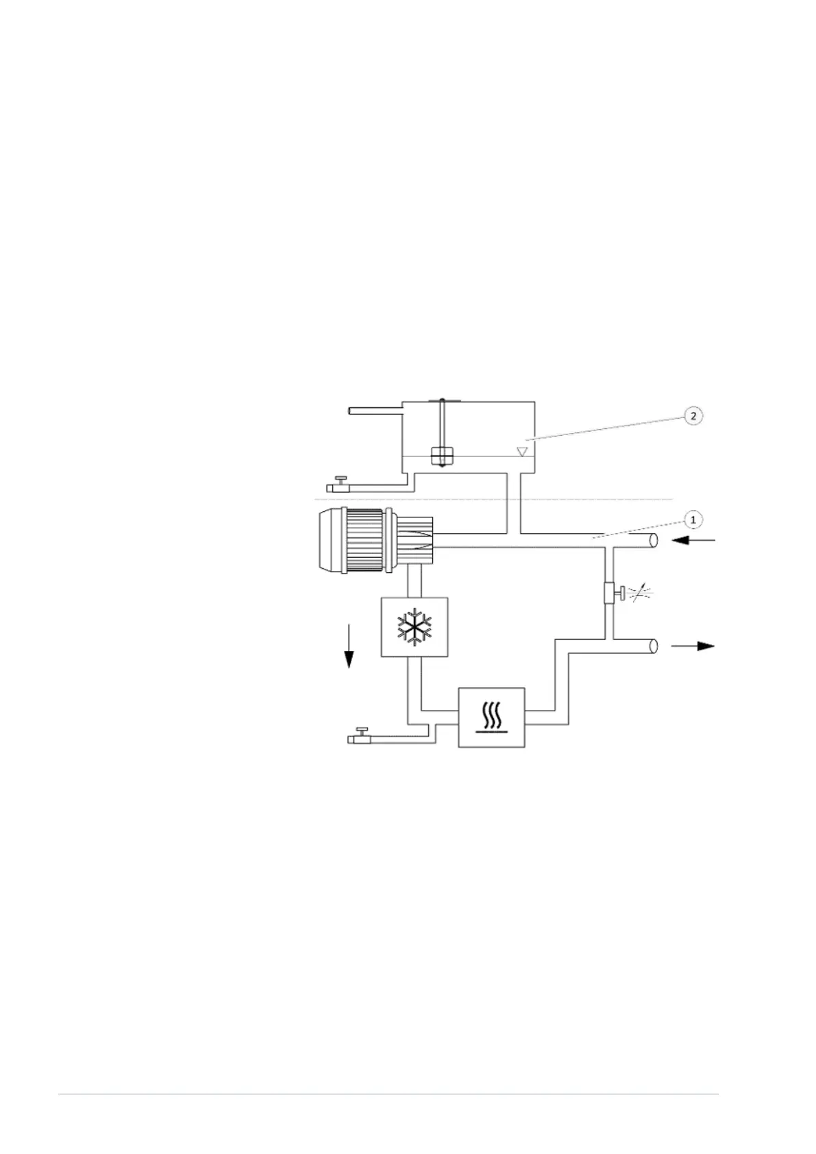
All devices are equipped with an 8-stage, hermetically sealed (magnetically
coupled) pump. The pump performance can thus be optimally adapted to the
respective task: High pump pressure, if, for example, long hoses lead to the
external consumer.
As an alternative to the 8 power stages, operation with pressure control
is provided. The pressure control enables a very eective supply of pressure-
sensitive glass reactors with maximum permissible pressurization.
In the event of a fault, large quantities of heat transfer liquid can flow back
into the device from the external circuit. In order not to flood the appliance,
the expansion vessel has an overflow pipe.
In the heating-up area the pump works up to a kinematic viscosity of
200 mm²/s. 50 mm²/s should not be exceeded during regular operation.
Optimum temperature control is under 30 mm²/s.
Fig. 13: Schematic of hydraulic circuit
1 Temperature-controlled
2 Not temperature-controlled
The hydraulic circuit in the device consists of the following components:
n Piping system
n Expansion vessel (not flowed through)
n Level sensor
n Pump
n Bypass
n Heating
n Evaporator
The external application is connected with hoses to the pump connectors of
the device.
External hydraulic circuit
V6Integral Process Thermostats and High-Temperature Thermostats28 / 198

Table of Contents

Related product manuals