EasyManua.ls Logo

Lennox eCOMFORT R32 GAC 035S

Lennox eCOMFORT R32 GAC 035S
88 pages
To Next Page IconTo Next Page
To Next Page IconTo Next Page
To Previous Page IconTo Previous Page
To Previous Page IconTo Previous Page
Loading...
• 33 •
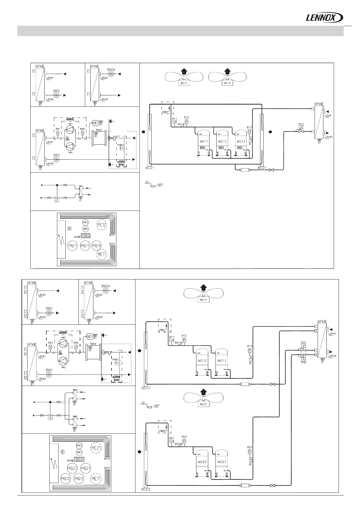
GAC D-BOX 140S
GAC D-BOX 110D-125D-140D
Installation manual / eCOMFORT R32-MIL166E-0222 - 09/2022
1.8.- PIPING DRAWINGS
COOLING ONLY UNITS
Electronic
ow switch
Electronic
ow switch
Flow
switch
Flow
switch
eDRIVE pump + water pump (options)
Desuperheater
Desuperheater
CUSTOMER
CONNECTIONS
FILTER
Discharge - Circuit 1
Discharge - Circuit 1
Discharge - Circuit 2
Discharge - Circuit 2
CUSTOMER
CONNECTIONS
FILTER
eDRIVE pump + water pump (options)
1.- GENERAL CHARACTERISTICS

Related product manuals