EasyManua.ls Logo

Lennox eCOMFORT R32 GAC 035S

Lennox eCOMFORT R32 GAC 035S
88 pages
To Next Page IconTo Next Page
To Next Page IconTo Next Page
To Previous Page IconTo Previous Page
To Previous Page IconTo Previous Page
Loading...
• 39 •
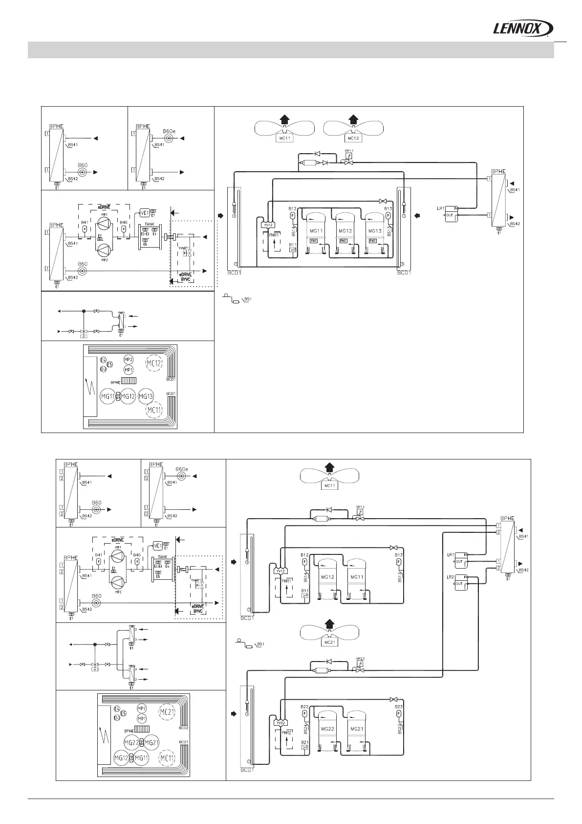
GAH D-BOX 140S
GAH D-BOX 110D-125D-140D
Installation manual / eCOMFORT R32-MIL166E-0222 - 09/2022
1.8.- PIPING DRAWINGS
HEAT PUMP UNITS
Desuperheater
Desuperheater
Discharge - Circuit 1
Discharge - Circuit 1
Discharge - Circuit 2
FILTER
FILTER
CUSTOMER
CONNECTIONS
CUSTOMER
CONNECTIONS
eDRIVE pump + water pump (options)
Electronic
ow switch
Flow switch
eDRIVE pump + water pump (options)
Electronic
ow switch
Flow switch
1.- GENERAL CHARACTERISTICS

Related product manuals