EasyManua.ls Logo

Lennox eCOMFORT R32 GAC 035S

Lennox eCOMFORT R32 GAC 035S
88 pages
To Next Page IconTo Next Page
To Next Page IconTo Next Page
To Previous Page IconTo Previous Page
To Previous Page IconTo Previous Page
Loading...
• 56 •
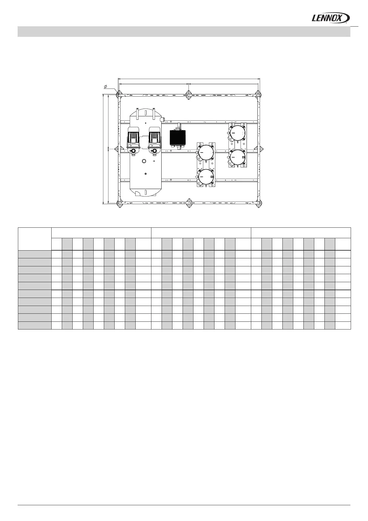
1 2 3 4 5 6 7 8 1 2 3 4 5 6 7 8 1 2 3 4 5 6 7 8
GAC125SP1M
109 59 125 85 146 126 72 146 868 121 64 129 101 150 138 76 144 923 197 95 145 210 163 220 98 155 1283
GAC140SP1M
108 59 125 85 147 122 70 143 859 120 64 122 104 152 135 73 144 914 195 95 143 212 166 216 96 151 1274
GAC110DP1M
113 62 132 90 156 123 71 148 895 124 67 130 106 163 136 75 149 950 200 98 150 177 215 218 97 155 1310
GAC125DP1M
115 63 135 90 158 121 69 150 901 125 70 135 106 170 138 77 135 956 200 101 148 215 178 215 99 160 1316
GAC140DP1M
112 62 132 90 155 119 70 140 880 120 69 130 112 160 136 73 135 935 197 105 140 205 180 215 98 155 1295
GAH125SP1M
109 59 127 85 148 126 72 146 872 121 64 129 101 150 138 76 148 927 197 95 145 210 163 220 98 159 1287
GAH140SP1M
108 59 125 87 150 122 70 143 864 120 64 127 104 152 135 73 144 919 195 95 143 212 166 216 96 156 1279
GAH110DP1M
113 62 132 90 161 123 71 148 900 124 67 135 106 163 136 75 149 955 200 98 150 177 215 218 97 160 1315
GAH125DP1M
117 65 140 90 170 125 74 153 934 129 70 142 106 172 138 77 155 989 204 101 158 215 186 219 99 167 1349
GAH140DP1M
112 62 132 90 163 120 70 145 894 127 69 135 112 166 136 74 147 966 249 119 160 286 188 268 110 166 1546
6
5
4
87
1 32
2242
1735
12
854,5854,5
1083 1083
Installation manual / eCOMFORT R32-MIL166E-0222 - 09/2022
2.5.- WEIGHT DISTRIBUTION (kg) - Units with water tank
Nr. Position
STD Unit With Dual Pump With Dual Pump & Water tank
Total
(Kg)
Total
(Kg)
Total
(Kg)
2.- INSTALLATION

Related product manuals