EasyManua.ls Logo

Lennox EL297UH070XV36B - Page 92

Lennox EL297UH070XV36B
115 pages
To Next Page IconTo Next Page
To Next Page IconTo Next Page
To Previous Page IconTo Previous Page
To Previous Page IconTo Previous Page
Loading...
Page 92
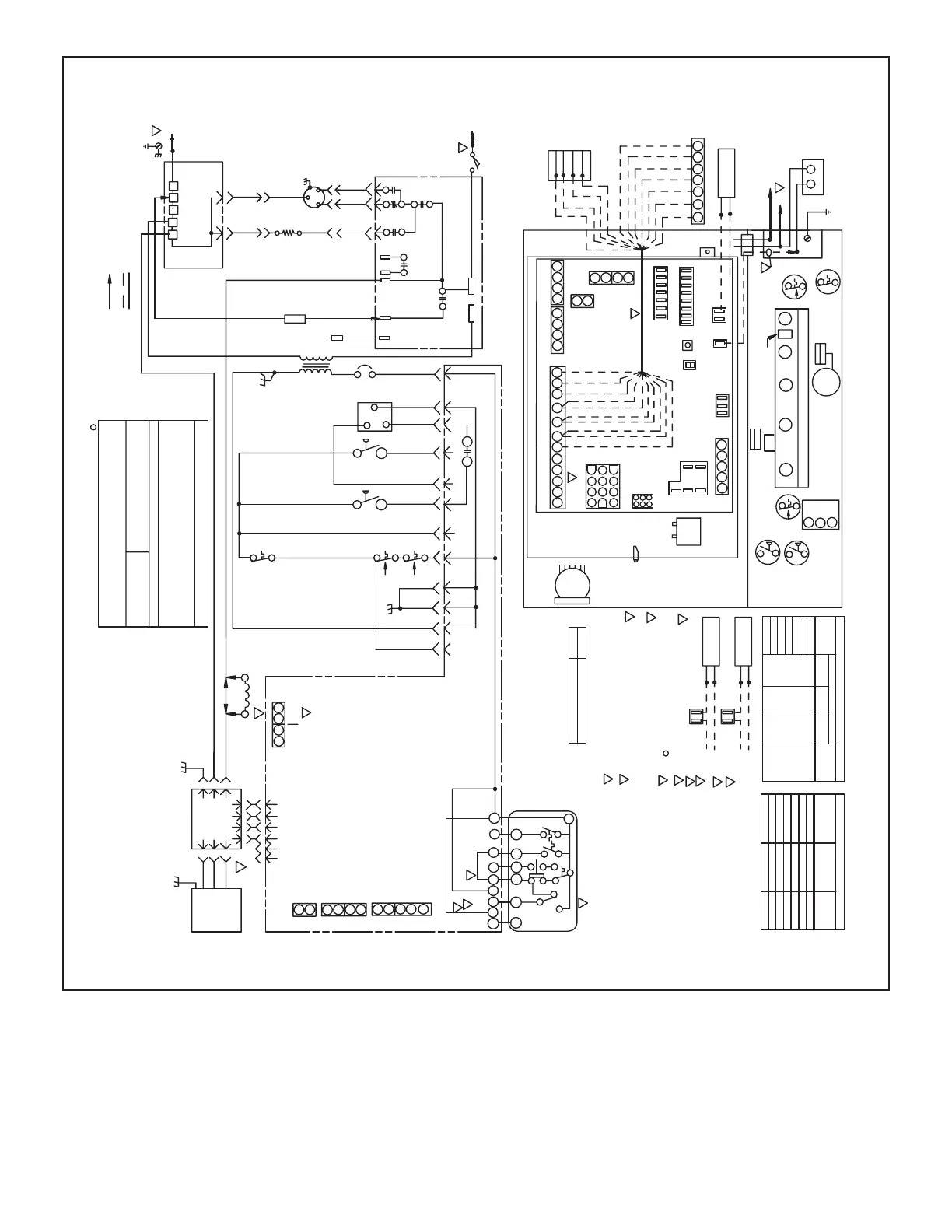
EL297UHV WITH IGNITION CONTROL 103130-XX AND BLOWER DRIVE
P159
IGNITOR
1
2
NOTE-
IF ANY WIRE IN THIS APPLIANCE IS REPLACED,IT
MUST BE REPLACED WITH WIRE OF LIKE SIZE,
HEATING UNITS-GAS
S51
L1
N
NNN
EQUIPMENT
GROUND
NN
P159
J159
BLUE
BLUE
CB8
WARNING-
ELECTRIC SHOCK HAZARD,CAN CAUSE INJURY
OR DEATH.UNIT MUST BE GROUNDED IN ACCORDANCE
WITH NATIONAL AND LOCAL CODES.
DENOTES OPTIONAL COMPONENTS
LINE VOLTAGE FIELD INSTALLED
CLASS II VOLTAGE FIELD WIRING
24V
24VAC
SEC
NO
S102
C
GV1
GAS
VALVE
R33
S10
INTEGRATED
CONTROL
A92
THERMOSTAT HEAT ANTICIPATION SETTING
INTEGRATED CONTROL
UNIT
BLOWER SPEED CHART
LOW HEAT
PRESSURE
SWITCH
CB8
S102
HIGH HEAT
PRESSURE
SWITCH
W2
PRIMARY
LIMIT
S47
CIRCUIT
BREAKER
T1
TRANSFORMER
120V ACC
(IF USED)
G
N
L1
GV1
GAS
VALVE
B3
S51
S1
ROOM THERMOSTAT
C
Y1
OUTDOOR
UNIT
Y1
G
W1
R
C
9
8
7
6
5
4
321
C
HI
S10
S128
COMBUSTION AIR
INDUCER MOTOR
B6
P84
J84
INTERLOCK
DOOR
P48
P49
24VAC
COM
Y2
W2
W1
G
Y1
R
DS
3
2
TERMINAL BOARD
ADJUST
Y2
INDOOR
BLOWER
MOTOR
Y2
Supersedes
Litho U.S.A.
C
A92
MVL
7
11
5
21
HLI
RO(OUT)
6
8
TH
GND
TR
MV COM
FLAME
SENSOR
A92
FLAME
SENSE
2
3
1
HUM
4
WHT
120V
T1
BLK
B6
J84
J84
COMBUSTION AIR
BLOWER MOTOR
3
COMBUSTION AIR
BLOWER MOTOR
P84
P84
B6
2
DOOR
INTERLOCK
5
LINE
CIRC
2
HIGH HEAT
PRESSURE SWITCH
1
LOW HEAT
PRESSURE SWITCH
S128
PS2
MVH
PS1
C
10
9
GND
HOT
O
W951
INTEGRATED
CONTROL
C
NO
9
4
11
(1) S47
(2) S47
2 HEAT 2 COOL
S47
J159
P159
FLAME
ROLLOUT
SWITCH
FLAME
ROLLOUT
SWITCH
10
11
12
TB1
HONEYWELL VALVE
1
2
3
1
JUMPER W915 FROM Y1 TO Y2 IS FACTORY INSTALLED
AT A92 CONTROL BOARD. LEAVE IN FOR ONE STAGE
COOL THERMOSTAT. CUT JUMPER Y1 TO Y2 FOR
TWO STAGE COOL THERMOSTAT.
BURNERS
R33
IGNITOR
FLAME
SENSOR
5
6
7
FIELD SUPPLIED ACC WIRE
6
FACTORY SHIPPED SETTINGS
HEAT COOL
SECONDARY
LIMITS
USED
0
1
HEAT
COOL
FAN
ON
R
W1
Y1
G
W2
Y2
COOL
2
2
AUTO
TWO STAGE
HEAT,COOL
8
USE COPPER CONDUCTORS ONLY
LENNOX
W1
W2
G
Y2
Y1
C
LO
DS
3
RO(IN)
L
HEAT PUMP
CUT W951 JUMPER FROM O TO R, LABELED
"HEAT PUMP", AT A92 CONTROL BOARD, WHEN
USED FOR DUAL FUEL APPLICATIONS
RATING, INSULATION THICKNESS, AND TERMINATION
9
9
K1
K4
K7
K8
10
10
HI
W914
W915
R
C
l
l
+
-
R
C
l
l
+
-
M
M
l
+
l
-
12
3 4
5
67
9
10
11
12
13
14 15
L1
J3
P79
NEUTRALS
J2
TB83
TB84
TB78
SENSOR
DISCHARGE
OUTDOOR AIR
TB82
RS BUS
LINK
l
+
l
-
OUTDOOR
SENSOR
DISCHARGE
AIR SENSOR
RS BUS
LINK
C
R
l
+
l
-
C
R
l
+
l
-
.65 AMP
.43 AMP
WHITE RODGERS VALVE
NOTE: SEE INSTALLATION INSTRUCTIONS FOR PROCEDURE
TO SET CORRECT BLOWER SPEED FOR SPECIFIC COOLING
TONNAGE BEING APPLIED, AND HEATING TEMPERATURE
RISE DESIRED.
TYPICAL SYSTEM SHOWN FOR 2 HEAT/2 COOL WITH A
CONVENTIONAL THERMOSTAT. SEE INSTALLATION
INSTRUCTIONS FOR CONNECTIONS TO OTHER EQUIPMENT
AND ACCESSORIES.
DIP SWITCH FACTORY DEFAULT IS FOR A TWO
STAGE THERMOSTAT
7
7
DISCHARGE AND OUTDOOR AIR
TERMINALS ARE FOR icomfort USE ONLY
8
8
THERMOSTAT CONNECTIONS ARE FOR
NON-COMMUNICATING SYSTEM ONLY.
REFER TO icomfort INSTALLATION
INSTRUCTIONS FOR COMMUNICATING
SYSTEMS.
DH AND L TERMINALS ARE ONLY USED
WITH icomfort THERMOSTAT
7
CUT W914 JUMPER LABELED "DEHUM OR
HARMONY" FROM DS TO R, AT A92 CONTROL
BOARD, WHEN USED WITH Comfortsense
7000 THERMOSTAT
R
A92
INTEGRATED
CONTROL
2011
H
R
DH
8
DIAGNOSTIC
PUSH
BUTTON
ACC
HUM
120V
ACC
J3
P3
J3
P3
P3
J3
P3
J3
L1
Character on 7-
segment LED
(w dot ON)
Circulator
Motor Size
1/2 HP
1/2 HP
1 HP
1 HP
Program unit capacity/size
C
C
Furnace
Model
HIGH
FACTORY
DEFAULT
SEVEN
SEGMENT
LED
ACC
K11
K5
HUMIDIFIER
HUMIDIFIER
HUMIDIFIER
120VAC
S1 ROOM THERMOSTAT
HUM
AT IFC
HUM
AT IFC
24VAC
TO C
TO R OR H ON CS7000
TO N
TO L1
SEE HUM VIEWS
FACTORY
DEFAULT
P79
J79
P2
J2
EL297UH045XV36B
EL297UH070XV36B
EL297UH090XV36C
EL297UH090XV48C
EL297UH090XV60C
EL297UH110XV48C
EL297UH110XV60C
1/2 HP
3/4
HP
3/4
HP
0
1
2
3
4
5
6
045XV36B
070XV36B
090XV36C
090XV48C
090XV60C
110XV48C
110XV60C
045XV36B
070XV36B
090XV36C
090XV48C
090XV60C
110XV48C
110XV60C
BLK
RED
WHT
WHT
WHT
YEL
PINK
PURPLE
BLUE
YEL
YEL
ORG
PURPLE
BRW
PNK
BRW
BRW W / YEL
BRW
GRN/YEL
WHT/PINK
STRIPE
6
5
4
3
2
1
3
4
2
1
INDOOR
BLOWER
DRIVE
3
2
INDOOR
BLOWER
MOTOR
1
U
V
W
4
L13 USED ON 3/4 AND 1 HP ONLY
L13
POWER
CHOKE
4
BLUE
YEL
RED
11
11
POWER CONNECTOR MUST BE CONNECTED/
DISCONNECTED BEFORE CONNECTING/
DISCONNECTING COMMUNICATION CONNECTOR
A2L

Related product manuals