EasyManua.ls Logo

Lennox Elite CB30U Series - CB30 U Up-flow Unit Dimensions; CB30 U Up-Flow Side Return Air Filter Adapter

Lennox Elite CB30U Series
12 pages
Print Icon
To Next Page IconTo Next Page
To Next Page IconTo Next Page
To Previous Page IconTo Previous Page
To Previous Page IconTo Previous Page
Loading...
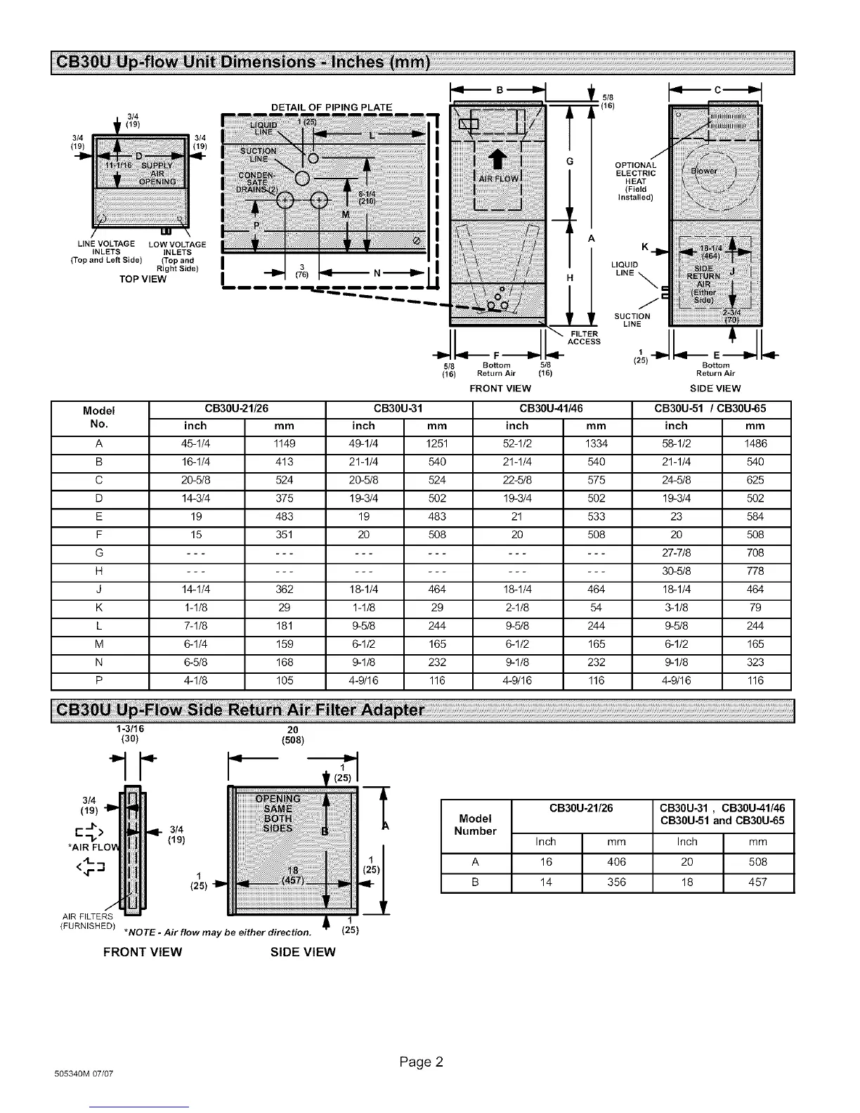
3/4
t(19)
3/4 3/4
(19)_ _1_)
LINE VOLTAGE LOW VOLTAGE
INLETS INLETS
(Top and Left Side) (Top and
Right Side)
TOP VIEW
I
I
DETAIL OF PIPING PLATE
t 5/8
OPTIONAL
ELECTRIC
HEAT
(Field
InstaBed)
A
K
LIQUID
LINE
SUCTION
LINE
JL__J JL_
5/8 F (215) BottEom
(16) Return Air
SIDE VIEW
Model CB30U-21/26 CB30U-31 CB30U-51 / CB30U-65
No. inch mm inch mm mm inch mm
A 45-1/4 1149 49-1/4 1251 1334 58-1/2 1486
B 16-1/4 413 21-1/4 540 540 21-1/4 540
C 20-5/8 524 20-5/8 524 575 24-5/8 625
D 14-3/4 375 19-3/4 502 502 19-3/4 502
E 19 483 19 483 533 23 584
F 15 351 20 508 508 20 508
G ............... 27-7/8 708
H ............... 30-5/8 778
J 14-1/4 362 18-1/4 464 464 18-1/4 464
K 1-1/8 29 1-1/8 29 54 3-1/8 79
L 7-1/8 181 9-5/8 244 244 9-5/8 244
M 6-1/4 159 6-1/2 165 165 6-1/2 165
N 6-5/8 168 9-1/8 232 232 9-1/8 323
P 4-1/8 105 4-9/16 116 116 4-9/16 116
FILTER
ACCESS
Bottom 5/8
Return Air (16)
FRONTVIEW
CB30U-41/46
inch
52-1/2
21-1/4
22-5/8
19-3/4
21
2O
18-1/4
2-1/8
9-5/8
6-1/2
9-1/8
4-9/16
3/4
(19)
1-3/16
(30)
AIR FILTERS
(FURNISHED)
20
(508)
ii _:_NiN;i!N_;i!iiiili;iiii!ilililililill|!:!:!:;!i!i!_!:!i!ili!iiii_i!!
i
i _iiiiiiiiiiiii'i;!ii_!;i;i
3,, i ii ii ii ii ii ii ii ii iiiiii!;!ii!;'ii]i
(,9, iiiiiiiiiiii i ;! :!: i i i;!i !: ! i i ii i : i ii iiiii i i i iiii iiii iiiiiiiiiiiiiiiiiiiiii!!!!!! iiiiiiiiiiiiiiiiiiiiiiiiiiiiiiiiiiiiiiiiiiiiiii!ii!ii!iiiiiiii"':ii!i!i!!i!iiiiiiiiiiiiiiiii!i!iiiiiiiiiiii!!ii!i!ii'iiil
1 ii_I:I:I:I:_!_!_!_!_!_!_!:_i_!i_i_i_i!i_i_:iiiiiiiiiiiiiiiiiiiiiiiiiiiiiiiiiiiiiiii:!_:_iii:iI_;!!_!I;_i_i ii_iiiii!iiiiiiiiiii!!i_ii
(25) '_
*NOTE - Air flow may be either direction.
I_ (25)
CB30U-21/26 CB3OU-31 , CB30U-41/46
Model CB30U-51 and CB30U-65
Number
Inch mm Inch mm
A 16 406 20 508
B 14 356 18 457
FRONT VIEW SIDE VIEW
Page 2
505340M 07/07

Related product manuals