EasyManua.ls Logo

Lennox G43UF SERIES - GSW Water Heater Thermal Expansion and Warranty; Managing Pressure and Understanding Warranty

Lennox G43UF SERIES
51 pages
To Next Page IconTo Next Page
To Next Page IconTo Next Page
To Previous Page IconTo Previous Page
To Previous Page IconTo Previous Page
Loading...
ElECTR
IC
liIICIC
HAlAIII.
CAN
CAUSE
C
."
TO
24
VAC
PO'KR
SllIIta:
20
VA
lI1NIIIJN
NEe
CLASS
Z
.--....,&
~
;;:=3
&
I'DR
U!lE
WITH
Cllf'PER
roNllUCTORS
ON.
Y.
REFER
TO
IIlIT
RATlNlI
P\.All
fDR
IIINIIUl
CIRCUIT
AJIIACITY
AND
IIU1U
DVERCURlIEHT
PRDTECTION
&IZE.
~
JlM'£R
IS
USED
WHEN
m:
TS
lilT
USED
A4
TllIEO
Off
TO
24
VAC
POIER
mil
m:.tJ~~NIIUI
I£C cuss 2
C
\'1
H--lI.Al;~--rfj~J.~4~J
__
-L-
__
J t
~
....J
I
P"NI\I-O+~I--_..YjHt:t:-"':"J-_~LK:
--1
~-""'~",",",,--~ll
I
:
==::t-_I_H~_f208,-2!O/eO/I
I
..
1fIOIN)
I
~------,
L
=:'-'
I
)-IlII=+-KC
5
~
III
W.OH
587
011
SZ4
m!lSU1lE
ftHCH
Z08·ZJOItIO/I
u_-
....
-c
ticu
II'VENf
T
8R01NI
WARN1N&-
INJIJIY
DR
DEATM.
UNIT
lIJ5T
DE
-
~SOPTIONAL
~
~'~~'~~d~TH
---
LlI£
VIl.TAGE
rJELD
INSTw.m
- _
..
cuss
II
YOt.TA811'1EUI
INSTALLED
N
...
'or.
N
••
534.
773W
~
-
LilA.
U
•••
A.
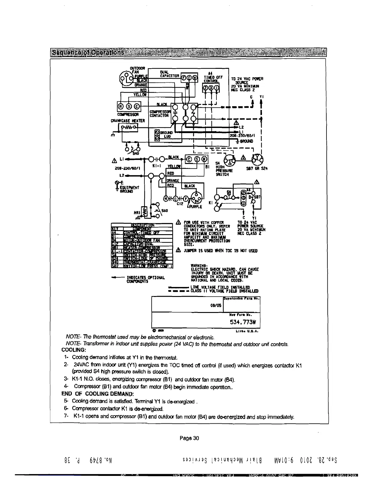
NOTE-
The
thermostat
used
may
be
electromechanical
or
electronic.
NOTE-
Transformer
in
indoor
unit
supplies
power
(24
VAC)
to
the
thetmostat
and
outdoor
unit
controls.
COOLING:
1-
Cooling
demand
in~iates
at
Y1
in
the
thermostat.
2-
24VAC
from
indoor
unit
(Y1)
energizes
the
TOe
timed
o1f
control
(if
used)
which
energizes
oontactor
K1
(provided
54
high
pressure
switch
is
Closed).
3-
K1-1
N,D.
doses,
energizing
<Xlll1pressor
(B1)
and
outdoor
fan
motor
(64).
4-
Compressor
(B1)
and
outdoor
fan
motor
(84)
begin
immediate
operation
..
END
OF
COOLING
DEMAND:
5-
Cooling
demand
is
satisfied.
Terminal
Y1
Is
d6-el1El1'gized
.
6-
Compressor
conlactor
K1
is
de-energized.
7-
K1-1
opens
and
compressor
(B1)
end
outdOO'"
fan
motOl'
(84)
are
de-energlzed
and
stop
immediately.
Page
30
'd
6H8
'ON
.j
it".I~l.
•.
t€l!i

Other manuals for Lennox G43UF SERIES

Related product manuals