EasyManua.ls Logo

Lennox G61MPVT-36B-070 - Unit Dimensions

Lennox G61MPVT-36B-070
52 pages
To Next Page IconTo Next Page
To Next Page IconTo Next Page
To Previous Page IconTo Previous Page
To Previous Page IconTo Previous Page
Loading...
Page 2
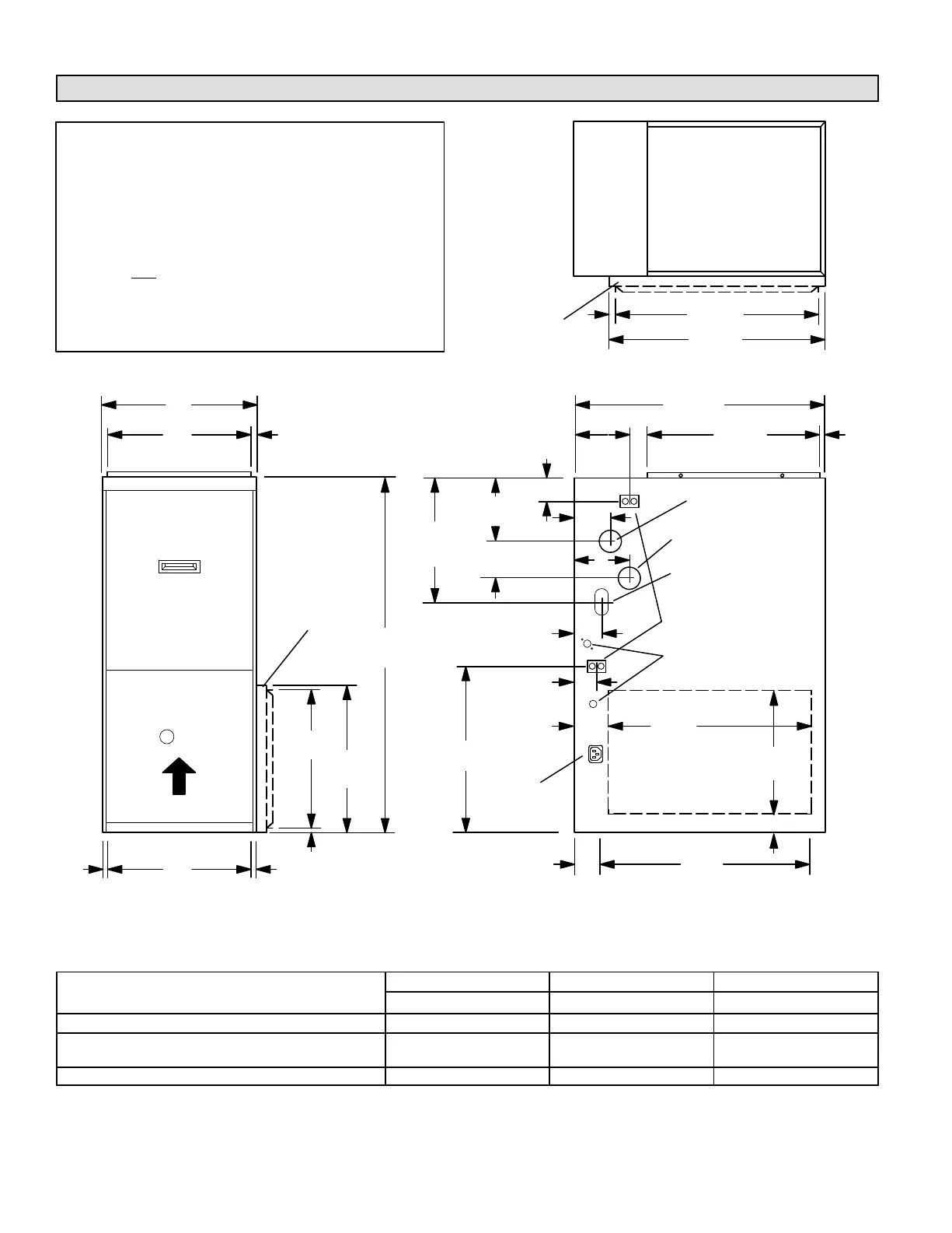
G61MPVT Unit Dimensions − mm
*Bottom Return
Air Opening
*Bottom Return
Air Opening
ELECTRICAL INLET
(Either Side)
SUPPLY AIR
OPENING
AIR FLOW
FRONT VIEW SIDE VIEW
TOP VIEW
A
B
14
C
19
19
724
378
597
108
295 Right
248 Left
124 Right
57 Left
40
(1016)
102
49
584
356**
14
406
375
16
603
635
GAS PIPING INLET
(Either Side)
EXHAUST AIR OUTLET
(Either Side)
CONDENSATE
TRAP CONNECTION
(Either Side)
64
476
1
OPTIONAL
EXTERNAL
SIDE RETURN
AIR FILTER KIT
(Either Side)
1
OPTIONAL
EXTERNAL
SIDE RETURN
AIR FILTER KIT
(Either Side)
*OPTIONAL
RETURN CUTOUT
(Either Side)
*60C and 60D size units installed in upflow applications
that require air volumes over 1800 cfm (850 L/s) must
have one of the following:
1. Single side return air with transition, to accommodate
20 x 25 x 1 in. (508 x 635 x 25 mm) air filter.
Required to maintain proper air velocity.
2. Single side return
3. Bottom return air.
4. Return air from both sides.
5. Bottom and
one side return air.
Refer to Engineering Handbook for additional information.
**Consider sizing requirements for optional IAQ equip-
ment before cutting side return opening.
COMBUSTION AIR INTAKE
(Either Side)
165
103
165
171
140
79
IEC
RECEPTACLE
Model No.
A B C
mm mm mm
G61MPVT−36B−070 446 416 406
G61MPVT−60C−090
G61MPVT−60C−110
533 454 495
G61MPVT−60D−135 622 594 584

Related product manuals