EasyManua.ls Logo

Lennox G71MPP - Unit Dimensions

Lennox G71MPP
72 pages
Print Icon
To Next Page IconTo Next Page
To Next Page IconTo Next Page
To Previous Page IconTo Previous Page
To Previous Page IconTo Previous Page
Loading...
Page 2
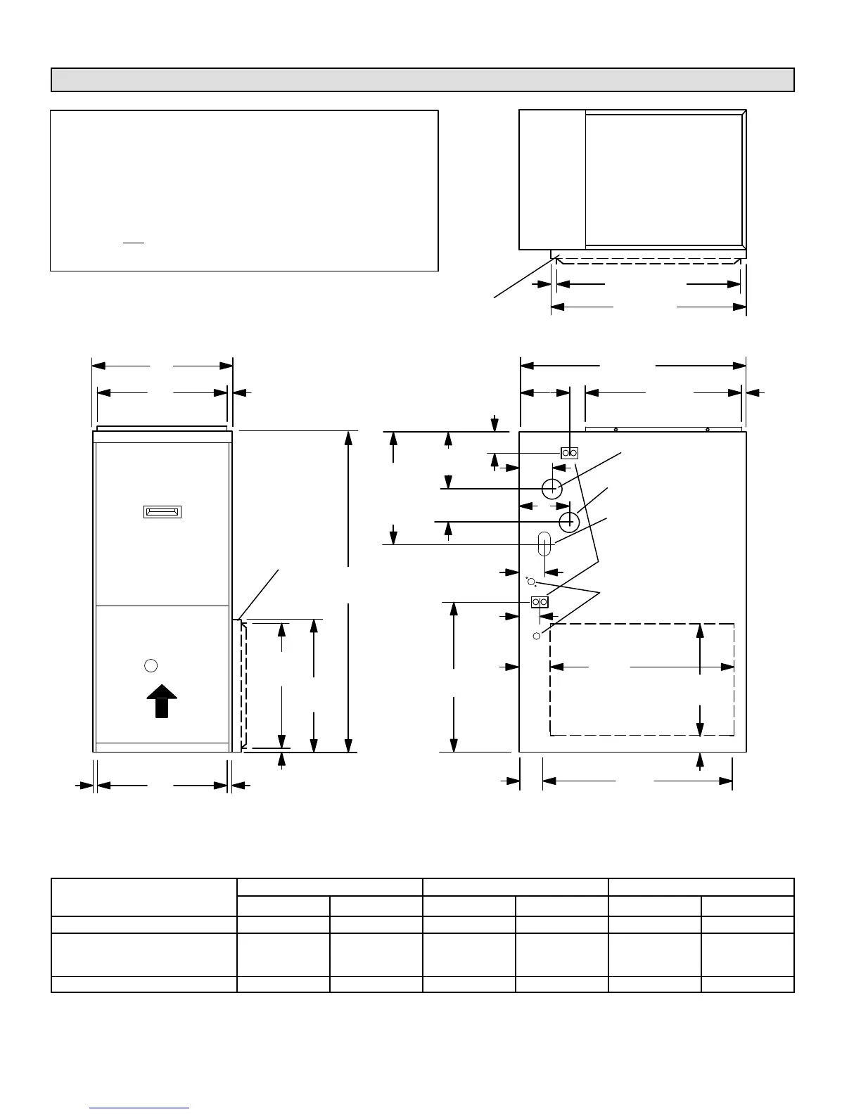
G71MPP Unit Dimensions − inches (mm)
1
Bottom Return
Air Opening
1
Bottom Return
Air Opening
ELECTRICAL INLET
(Either Side)
SUPPLY AIR
OPENING
AIR FLOW
FRONT VIEW SIDE VIEW
TOP VIEW
A
B 9/16 (14)
C
3/4 (19)
3/4 (19)
28−1/2
(724)
19−7/16
(494)
23−1/2
(597)
4−1/4
(108)
11−5/8 (295)
Right
9−3/4 (248)
Left
1−3/4 (45) Right
3−9/16 (91) Left
40
(1016)
4
(102)
1−15/16 (49)
23
(584)
14
(356)
9/16
(14)
16
(406)
14−3/4
(375)
5/8 (16)
23-3/4 (603)
25 (635)
GAS PIPING INLET
(Either Side)
EXHAUST AIR OUTLET
(Either Side)
CONDENSATE
TRAP CONNECTION
(Either Side)
2−1/2
(64)
18-3/4 (476)
2
OPTIONAL
EXTERNAL
SIDE RETURN
AIR FILTER KIT
(Either Side)
1
OPTIONAL
RETURN CUTOUT
(Either Side)
Up−Flow Only
2
Optional External Side Return Air Filter Kit (Upflow Only) is not
for use with the optional RAB Return Air Base.
1
NOTE − 60C and 60D size units that require air volumes over
1800 cfm (850 L/s) must have one of the following:
a. Single side return air with transition, to accommodate
20 x 25 x 1 in. (508 x 635 x 25 mm) air filter. Required to
maintain proper air velocity.
b. Single side return air with optional RAB Return Air Base.
c. Bottom return air.
d. Return air from both sides.
e. Bottom and
one side return air.
See Blower Performance Tables for additional information.
COMBUSTION AIR INTAKE
(Either Side)
6−1/2
(165)
4−1/8
(103)
6−1/2
(165)
6−3/4
(171)
5−1/2
(140)
3−1/8
(79)
2
OPTIONAL
EXTERNAL
SIDE RETURN
AIR FILTER KIT
(Either Side)
Model No.
A B C
in. mm in. mm in. mm
G71MPP−36B−070 17−1/2 446 16−3/8 416 16 406
G71MPP−36C−090
G71MPP−60C−090
G71MPP−60C−110
21 533 19−7/8 505 19−1/2 495
G71MPP−60D−135 24−1/2 622 23−3/8 546 23 584

Other manuals for Lennox G71MPP

Related product manuals