EasyManua.ls Logo

Lennox LI024CI-170P432-1 - Installation; Installation Dimension Diagram

Lennox LI024CI-170P432-1
126 pages
To Next Page IconTo Next Page
To Next Page IconTo Next Page
To Previous Page IconTo Previous Page
To Previous Page IconTo Previous Page
Loading...
42
Installation and Maintenance
Service Manual
8. Installation
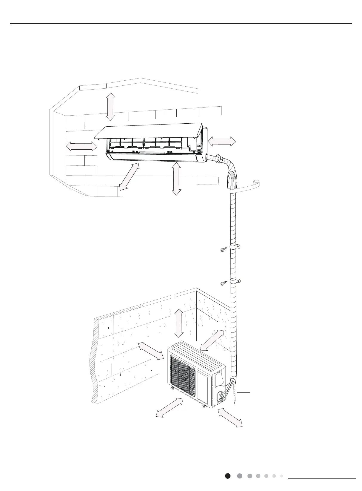
8.1 Installation Dimension Diagram
Space to the ceiling
Space to the wall
At least 5 7/8 inch
At least 98 7/16 inch
At least 5 7/8 inch
At least 5 7/8 inch
Space to the wall
Space to the obstruction
ro
o
l
f
eht
o
t eca
p
S
At least 118 inch
Space to the obstr
ucti
o
At least 78 5/8 inch
Sp
ac
e to the wall
At least 11 13/16 inch
At least 19 11/16 inch
Space to the ob
structio
n
At
least 11 1
3/16 inch
Sp
ace
t
o the obstructio
n
At least 19 11/16 inch
Drainage pipe
Space to the obstruction
Installation procedures

Related product manuals