EasyManua.ls Logo

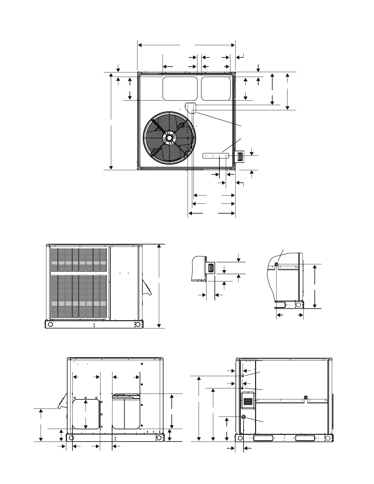
Lennox LRP16G - Unit Dimensions and Roof Curb Requirements; Unit Dimensions

Lennox LRP16G
30 pages
Print Icon
To Next Page IconTo Next Page
To Next Page IconTo Next Page
To Previous Page IconTo Previous Page
To Previous Page IconTo Previous Page
Loading...
Page 2
12.12
3.87
3.62
4.06
26.19
32.20
POWER ENTRY
1-1/8 DIA. KNOCKOUT
LOW VOLTAGE ENTRY
7/8 KNOCKOUT
GAS ENTRY
5.863.07
6.20
17.07
13.44
13.44
14.32
16.06
6.20
40.89
21.63
13.21
TYPICAL DRAIN
LOCATION
CONDENSATE
DRAIN 3/4 NPT
5.75
3.55
4.12
TYPICAL
VENT HOOD
SIDE VIEWS
11.49
2.33
47.66
1.98
16.77
2.48
14.02
47.66
POWER ENTRY
GAS ENTRY
6.94
2.33
11.49
16.07
18.52
3.25
4.56
20.31
21.06
23.19
RETURN
AIR
SUPPLY
AIR
TOP VIEW
Unit Dimensions - Small Base

Related product manuals