EasyManua.ls Logo

Lennox MPA018S4S-1P - 208;230 V MPA030 S4 S-1 P Outdoor Unit Wiring Diagram

Lennox MPA018S4S-1P
258 pages
To Next Page IconTo Next Page
To Next Page IconTo Next Page
To Previous Page IconTo Previous Page
To Previous Page IconTo Previous Page
Loading...
Lennox Mini-Split Service Manual / Page 91
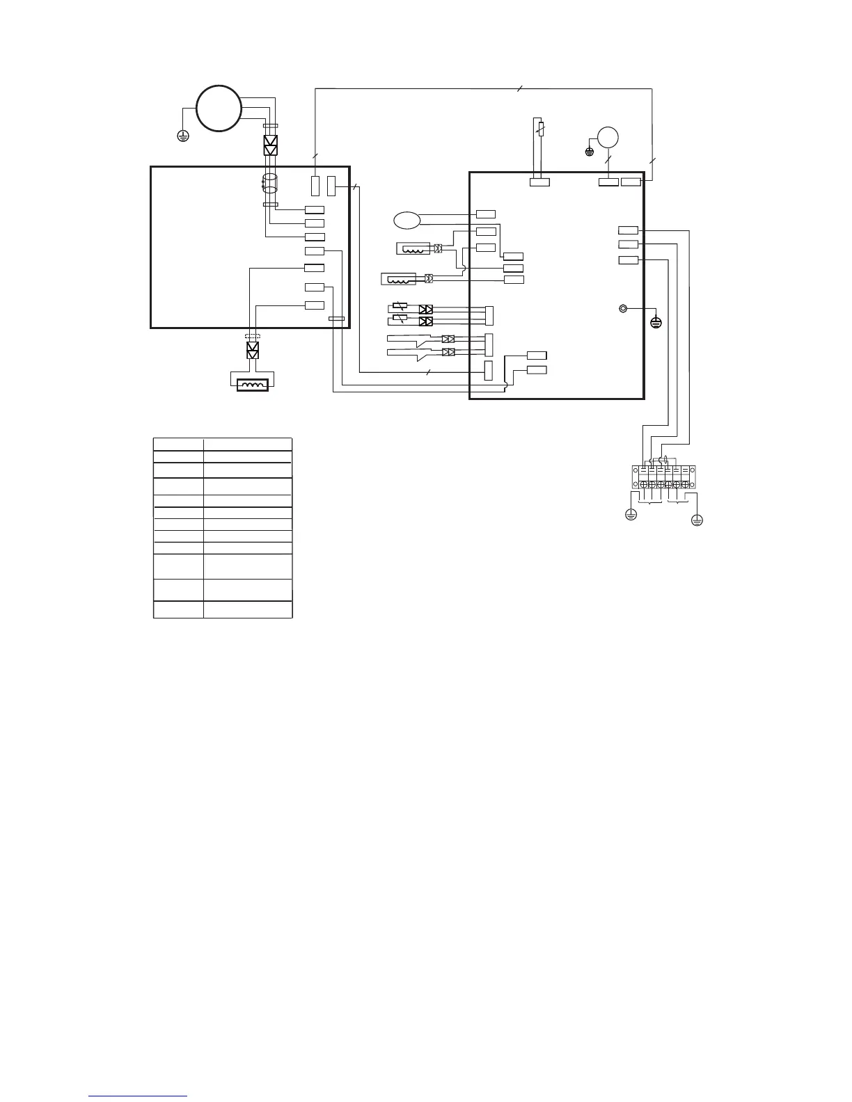
208/230V MPA030S4S-1P Outdoor Unit Wiring Diagram
Typical wiring diagram. Refer to wiring diagram on the unit for actual wiring.
COMP
FM1
MAIN BOARD
U
V
W
Y/G
Y/G
L
L-PRO
T3
T4
CODE PART NAME
COMPRESSOR
HEAT1
4-WAY VALVE
COMP
H-PRO
L-PRO
LOW PRESSURE SWITCH
HIGH PRESSURE SWITCH
T3
T4
OUTDOOR COIL
TEMP.SENSOR
OUTDOOR TEMP.SENSOR
CRANKCASE HEATER
H-PRO
SV
L
PFC INDUCTOR
Y/G
COMPRESSOR DISCHARGE
TEMP.
RED
BLACK
V
U
CN19
CN51
CN55
W
BLACK
RED
7
7
YELL OW
BLUE
P-1
FM1
OUTDOOR DC FAN
CN53
CN3
CN4
CN10
CN40
CN22
CN44
CN8
CN9
CN7
CN2
CN1
CN5
CN54
CN52
CN33
CN6
SV
BLUE
BLUE
HEAT2
HEAT1
CN12 CN11
BLACK
RED
BLUE
BLUE
BLUE
YELL OW
RED
BLACK
RED
BLACK
JXI
L2
72,1'22581,7
32:(56833/<
<*
2
3
L1
RED
RED
BLACK
YELLOW
S
%/$&.
<(//2:
L1
L2
&5$1.&$6(+($7(5
3$1+($7(5
+($7
3$1+($7(5
6(1625
V1.0 2015/5/08
Compressor
Control Board

Table of Contents

Other manuals for Lennox MPA018S4S-1P

Related product manuals