EasyManua.ls Logo

Lennox SL280UHNV Series - Page 40

Lennox SL280UHNV Series
50 pages
Print Icon
To Next Page IconTo Next Page
To Next Page IconTo Next Page
To Previous Page IconTo Previous Page
To Previous Page IconTo Previous Page
Loading...
Page 40
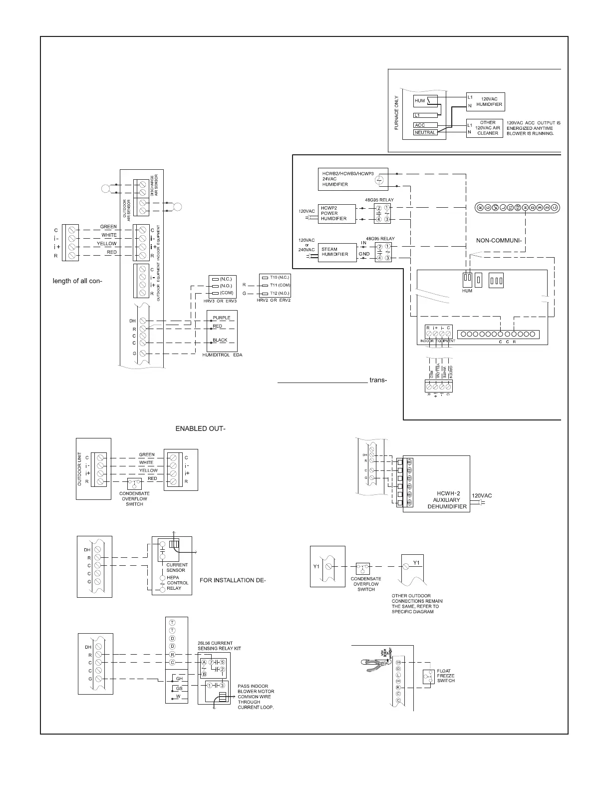
Optional Accessories for use with any iComfort Touch
®
System
NOTE: 24V UV LIGHT
APPLICATIONS
In an iComfort
®
by Lennox
®
system,
neither furnace nor air handler
former will have adequate VA to
power 24V UV light applications. An
additional transformer for UV light
applications is required.
iComfort
®
THERMOSTAT
Discharge Air
Sensor (Required
for even heat)
NOTE: iComfort
®
THERMOSTAT SENSES HUMIDITY & CONTROLS
HUM CONTACTS TO CYCLE HUMIDIFIER BASED ON DEMAND. NO
OTHER CONTROL OR HUMIDISTAT REQUIRED.
OPTIONAL OUTDOOR AIR SENSOR FOR USE WITH HUMIDIFIER (IF
NOT ALREADY IN THE SYSTEM FOR OTHER FUNCTIONS. BUILT INTO
ALL icomfort® by Lennox® OUTDOOR UNITS).
Maximum total
nections on the
RSBus is limited
to 1500ft.
Wire gauge of
RSBus wire is 18.
RSBus
Rf WGh
Gs
Cf
HVAC EQUIP
DEHUMIDIFIER
CONTROL
HVAC
EQUIPMENT
DH
STANDARD 1 OR 2
STAGE AC OR HP UNIT
*24V IN
JUMPER
iComfort
®
ENABLED
FURNACE
iComfort
®
ENABLED
FURNACE
iComfort
®
THERMOSTAT
CONVENTIONAL
CATING SYSTEM
COMMUNICATING SYSTEM
THERMOSTAT
*24V IN jumper not used in non-
communicating configuration
24V HUMIDIFIER CONNECTIONS
120V CONNECTIONS
HEPA BYPASS FILTER X2680 HEPA INTERLOCK KIT
PASS INDOOR BLOWER
MOTOR COMMON WIRE
THROUGH CURRENT LOOP.
SEE HEPA INTERLOCK KIT
TAILS
LVCS VENTILATION CONTROL SYSTEM
SEE LVCS VENTILATION
INSTRUCTIONS FOR
DAMPER & SENSOR WIRING
icomfort
ENABLED
FURNACE
icomfort
®
DOOR AIR CONDITIONING
OR HEAT PUMP UNIT
(POWER COMPANY INTERRUPTION SYSTEMS
ARE WIRED SAME AS OVERFLOW SWITCH)
icomfort
ENABLED
FURNACE
CUT
R-DS
W914
DS
R
2 STAGE FURNACE
COMMUNICATING
SYSTEM WIRING
NON-COMMUNICATING
SYSTEM WIRING
“HUM” CONTACT IS
CLOSED ANYTIME
HUMIDITY DEMAND
IS PRESENT
icomfort
ENABLED
FURNACE

Other manuals for Lennox SL280UHNV Series

Related product manuals