EasyManua.ls Logo

Lennox SLP98DF090XV48C - Page 61

Lennox SLP98DF090XV48C
71 pages
Print Icon
To Next Page IconTo Next Page
To Next Page IconTo Next Page
To Previous Page IconTo Previous Page
To Previous Page IconTo Previous Page
Loading...
Page 61
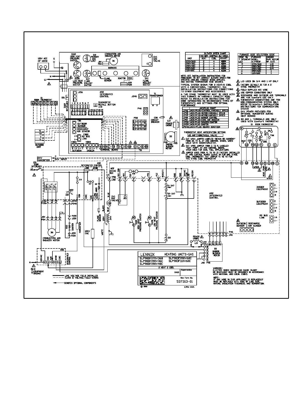
VIII- Wiring and Sequence of Operation
NOTE - The thermostat selection DIP switch on the control is
factory-set in the “TWO-STAGE” position.
Applications Using a Two-Stage Thermostat
A - Heating Sequence -- Control Thermostat Selection
DIP switch in “Variable Capacity” Position
1. On a call for heat, thermostat first-stage contacts close
sending a signal to the integrated control. The inte
grated control runs a self‐diagnostic program and
checks high temperature limit switches for normally
closed contacts and pressure switches for normally
open contacts. The combustion air inducer is ener
gized at ignition speed, which is approximately the
same as the inducer speed at 70 percent firing rate.
2. Once the control receives a signal that the low-fire
pressure switch has closed, the combustion air inducer
begins a 15-second pre-purge in ignition speed.
3. After the pre-purge is complete, a 20-second initial ig
nitor warm-up period begins. The combustion air in
ducer continues to operate at the ignition speed.
4 - After the 20-second warm-up period has ended, the gas
valve is energized and ignition occurs. At the same time,
the control module begins an indoor blower 45-second
ON-delay. When the delay ends, the indoor blower mo
tor is energized at a speed that matches the firing rate.
After the 10-second ignition stabilization delay expires,
the inducer speed is adjusted to the

Related product manuals