EasyManua.ls Logo

Lennox XP16 Series - Page 47

Lennox XP16 Series
51 pages
To Next Page IconTo Next Page
To Next Page IconTo Next Page
To Previous Page IconTo Previous Page
To Previous Page IconTo Previous Page
Loading...
Page 47
XP16
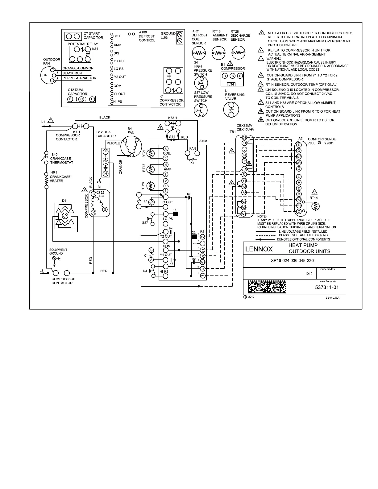
Figure 31. Unit Wiring Diagram (−024, −036 and −048 Sizes)  XP16XXX23005

Related product manuals