EasyManua.ls Logo

Lenze 8400 StateLine C - Page 72

Lenze 8400 StateLine C
286 pages
To Next Page IconTo Next Page
To Next Page IconTo Next Page
To Previous Page IconTo Previous Page
To Previous Page IconTo Previous Page
Loading...
Technical data
Terminal description
Overview
4
l
72
EDS84ASC552 EN 8.1
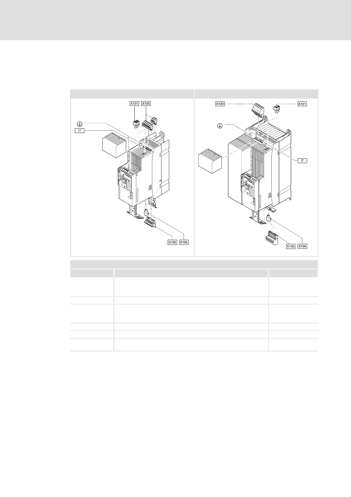
4.5 Terminal description
4.5.1 Overview
Standard device in device size GG 1 ... 3 Standard device in device size GG 4 ... 6
8400HLC058 8400HLC057
Connection
Pos. Description Number
X100
Mains/DC−bus voltage (for 400V devices)
For devices in device size 6 (18.5 ... 22 kW) the terminal strip is
not pluggable.
1
X101 Relay output 1
X105
Motor/external brake resistor
For devices in device size 6 (18.5 ... 22 kW) the terminal strip is
not pluggable.
1
X106 Motor temperature monitoring 1
+ PE conductor (on the supply side/on the motor side) 2
IT
Contact screw for interference suppression (on the supply side/on the
motor side)
2
Buy: www.ValinOnline.com | Phone 844-385-3099 | Email: CustomerService@valin.com

Table of Contents

Other manuals for Lenze 8400 StateLine C

Related product manuals