EasyManua.ls Logo

Lenze AC Tech SCF Series - Page 57

Lenze AC Tech SCF Series
70 pages
Print Icon
To Next Page IconTo Next Page
To Next Page IconTo Next Page
To Previous Page IconTo Previous Page
To Previous Page IconTo Previous Page
Loading...
For Sales and Support, Contact Walker EMD • Toll-free: (800) 876-4444 • Tel: (203) 426-7700 • Fax: (203) 426-7800 • www.walkeremd.com
54 SF01U
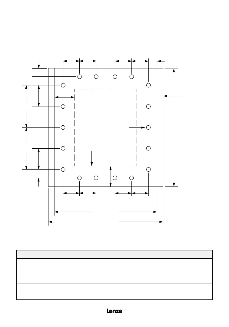
THROUGH-HOLE DRAWING FOR 15 HP (11 kW) AND 20 HP (15 kW) MODELS
This drawing applies to the following models only: SF2150F, SF4150F, SF5150F, SF4200F,
and SF5200F.
THROUGH-HOLE CUTOUT DIMENSIONS FOR 15 HP (11 kW) & 20 HP (15 kW)
MODELS
HEATSINK
0.24 (6)
L
M
PANEL
CUTOUT
0.63 (16)
(left & right)
M
11.14 (283)
H
E
MOUNTING
HOLES (#8)
1.00 (25)
(top & bottom)
E
F
F
1.04
(26)
10.14 (258)
2.24
(57)
TOP
2.24
(57)
1.04
(26)
1.04
(26)
2.24
(57)
2.24
(57)
1.04
(26)
HP (kW) MODEL H E F L M
15
(11)
SF2150F 18.09 (459) 6.03 (153) 3.02 (77) 0.50 (13) 2.52 (64)
SF4150F 15.59 (396) 6.63 (168) 3.31 (84) 0.22 (5.6) 0.95 (24)
SF5150F 15.59 (396) 6.63 (168) 3.31 (84) 0.22 (5.6) 0.95 (24)
20
(15)
SF4200F 18.09 (459) 6.03 (153) 3.02 (77) 0.50 (13) 2.52 (64)
SF5200F 18.09 (459) 6.03 (153) 3.02 (77) 0.50 (13) 2.52 (64)
Artisan Technology Group - Quality Instrumentation ... Guaranteed | (888) 88-SOURCE | www.artisantg.com