EasyManua.ls Logo

Lenze E82EV402K4C - Fig. 5.7-5 Dimensions for Thermally Separated Mounting 75; Thermally Separated Mounting (Push-Through Technique)

Lenze E82EV402K4C
588 pages
Print Icon
To Next Page IconTo Next Page
To Next Page IconTo Next Page
To Previous Page IconTo Previous Page
To Previous Page IconTo Previous Page
Loading...
Basic units in the power range 75 ... 90 kW
Thermally separated mounting (push-through technique)
5
Basic device installation
5.7
5.7.5
L
5.7-5
EDS82EV903-1.0-11/2002
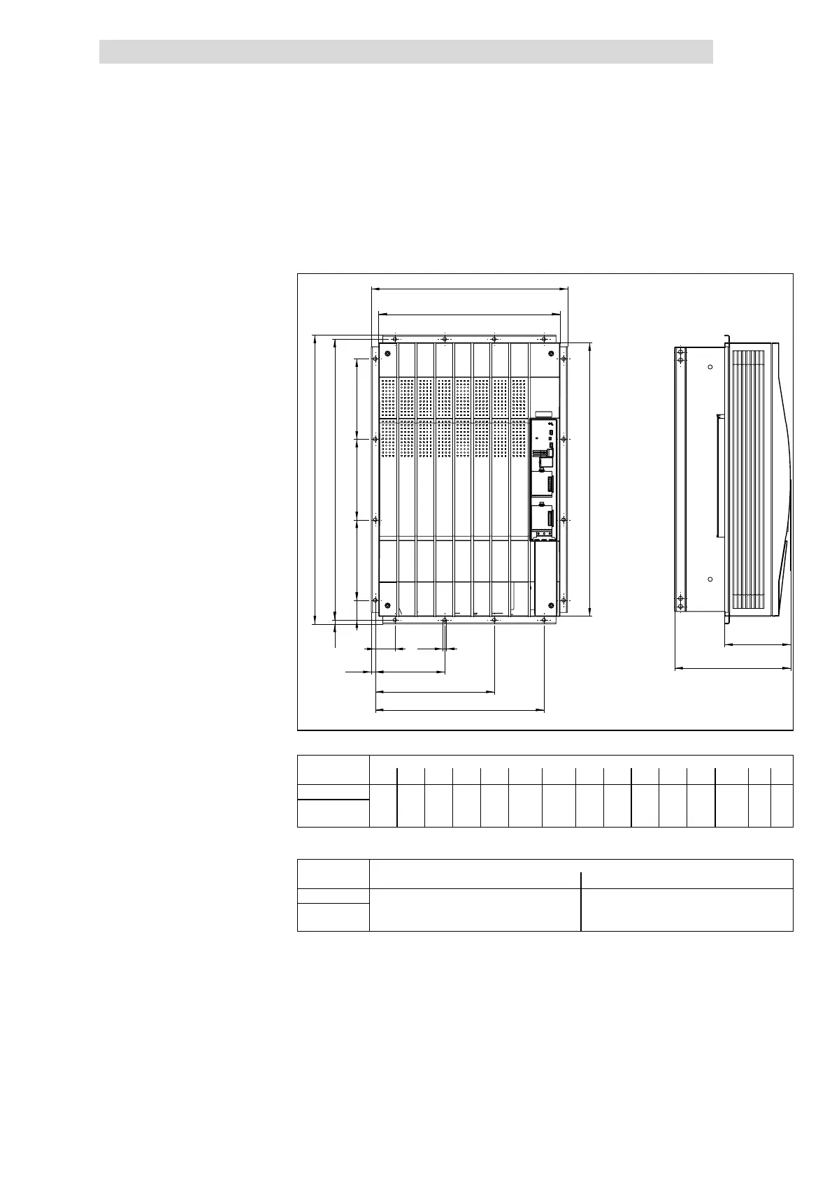
5.7.5 Thermally separated mounting (push-through technique)
For mounting in push-through technique use the controller type E82 D V... . The
delivery package includes all parts and components required for mounting.
h
c1
c2
c3
c4
g
a1
a
d1
h
d2
d2
d2
d
b
b1
e1
e
8200vec303
Fig. 5.7-5 Dimensions for thermally separated mounting 75 ... 90 kW
Dimensions [mm]
8200 vector a a1 b b1 c1 c2 c3 c4 d d1 d2 e e1 g h
E82DV753K4B
E82DV903K4B 488 450 718 680 49 172.5 295.5 419 698 49 200 285 163.5 9 10
Mounting cutout in the control cabinet
Dimensions [mm]
8200 vector a a1
E82DV753K4B
E82DV903K4B 488 450
Show/Hide Bookmarks

Table of Contents

Related product manuals