EasyManua.ls Logo

Lenze E82EV551K4C - Mounting with Fixing Brackets and Built-On Mains Filter (Mounting Variant 1)

Lenze E82EV551K4C
588 pages
Print Icon
To Next Page IconTo Next Page
To Next Page IconTo Next Page
To Previous Page IconTo Previous Page
To Previous Page IconTo Previous Page
Loading...
Basic units in the power range 75 ... 90 kW
Mounting with fixing brackets and built-on mains filter (mounting variant 1)
5
Basic device installation
5.7
5.7.3
L
5.7-3
EDS82EV903-1.0-11/2002
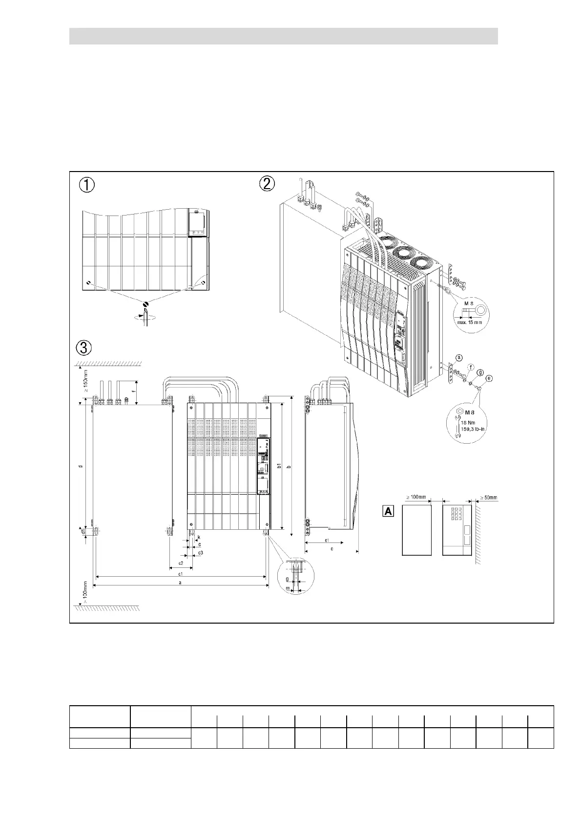
5.7.3 Mounting with fixing brackets and built-on mains filter (mounting variant 1)
8200vec282
Fig. 5.7-3 Standard mounting with built-on mains filter 75 ... 90 kW (mounting variant 1)
Loosebothscrewsinordertoremovethehousingcover.
Mounting of the fixing brackets
Dimensions
0
Mount the drive controllers side by side leaving a certain space for dismounting
the lifting-eye bolt.
Mains filter
Dimensions [mm]
8200 vector
M
a
n
s
f
t
e
r
type A or typ e B
a b c c1 c2 c3 d d1 e e1 f g k m
E82EV753K4B2x1 EZN3x0022H150
1
0
0
0
7
5
0
1
6
9
7
0
1
8
0
3
0
5
7
0
2
3
8
2
8
5
2
0
7
5
1
0
0
0
1
1
2
8
1
8
E82EV903K4B2x1 EZN3x0017H200
1000 750 16 970 180 30.5 702 38 285 207.5 1000 11 28 18
Show/Hide Bookmarks

Table of Contents

Related product manuals