EasyManua.ls Logo

Lenze E82EV551K4C - Page 516

Lenze E82EV551K4C
588 pages
Print Icon
To Next Page IconTo Next Page
To Next Page IconTo Next Page
To Previous Page IconTo Previous Page
To Previous Page IconTo Previous Page
Loading...
Braking operation with external brake resistor
8200 vector 15 ... 90 kW
13
Braking operation
13.4
13.4.2
L
13.4-6
EDS82EV903-1.0-11/2002
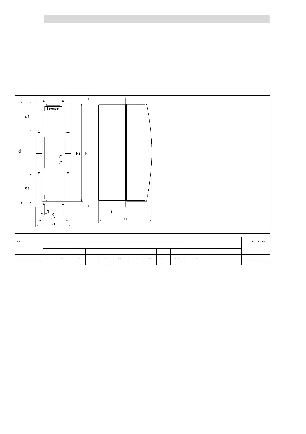
Dimensions for mounting in push-through technique
For fixing the brake chopper or brake module in push-through technique the
EJ0040 mounting set is required. It consists of mounting frame and seal.
9350E002
Type Dimensions [mm] Weight [kg]
T
y
p
e
Assembly cutout
W
e
g
h
t
[
k
g
]
a b b1 c c1 d d1 e f g Height Width
EMB9351 -E 86.5 386 350 34 69.5 367 162.5 186 92 6.5 350 ±3 56 2.6
EMB9352 -E
8
6
5
3
8
6
3
5
0
3
4
6
9
5
3
6
7
1
6
2
5
1
8
6
9
2
6
5
3
5
0
±
3
5
6
2.2
Show/Hide Bookmarks

Table of Contents

Related product manuals