EasyManua.ls Logo

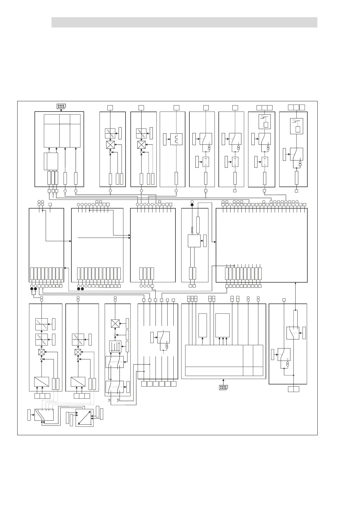
Lenze E82EV552K4C - Fig. 16.3-4 Overview of Signal Flow with Application I;O and Communication Module; Controller with Application I;O and Communication Module

Lenze E82EV552K4C
588 pages
Print Icon
To Next Page IconTo Next Page
To Next Page IconTo Next Page
To Previous Page IconTo Previous Page
To Previous Page IconTo Previous Page
Loading...
16
Signal-flow charts
16.3
16.3.4
L
16.3-4
EDS82EV903-1.0-11/2002
16.3.4 Controller with Application I/O and communication module
RELAY 2
8200 vector 15 ... 90kW
K21
1
1
0
C0409
K22
K24
X1.3
C0416
RELAY 1
C0416
2
K14
1
1
0
C0415/1
K11
K12
X1.2
C0423/1
1
0
C0423/3
DIGOUT2
C0416
2
1
1
0
C0415/3
A2
X3
C0423/2
DIGOUT1
C0416
2
1
1
0
C0415/2
A1
X3
DFOUT1
C0428
2
C0419/3
A4
X3
DFOUT1-AN-IN
AOUT1
AOUT1-OUT
+
+
C0419/1
AOUT1-IN
C0420/1
AOUT1-GAIN
C0422/1
AOUT1-OFFSET
2
X3
62
AOUT2
AOUT2-OUT
+
+
C0419/2
AOUT2-IN
C0420/2
AOUT2-GAIN
C0422/2
AOUT2-OFFSET
2
X3
63
C0424/2
C0424/1
AIF-OUT
AIFSTAT.B0
AIFSTAT.B15
AIF-OUT.W1
AIF-OUT.W2
2
2
16 Bit
16 Bit
AIF-STAT
Byte 3,4
Byte 5,6
AIF
...
STAT1.B15
STAT1.B0
STAT1
C0417/16
C0417/1
C0421/1
C0421/2
DCTRL1-TRIP-SET
DCTRL1-TRIP-RESET
DCTRL1-PAR 2/4
DCTRL1-PAR 3/4
DCTRL1-CW/QSP
DCTRL1-CCW/QSP
DCTRL1
DCTRL1-PAR-B0
DCTRL1-PAR-B1
DCTRL1-CINH
DCTRL1-OH-WARN
DCTRL1-OV
DCTRL1-RDY
DCTRL1-TRIP-QMIN-IMP
DCTRL1-PTC-WARN
DCTRL1-LP1-WARN
DCTRL1-TRIP
DCTRL1-IMP
DCTRL1-IMOT<ILIM
DCTRL1-(IMOT<ILIM)-QMIN
DCTRL1-(IMOT<ILIM)-RFG-I=O
DCTRL1-(IMOT>ILIM)-RFG-I=O
DCTRL1-RFG1=NOUT
DCTRL1-NOUT=0
DCTRL1-RUN
DCTRL1-RUN-CW
DCTRL1-RUN-CCW
DCTRL1-CCW
DCTRL1-CW/CCW
DCTRL1-QSP
DCTRL1-H/Re
2
2
2
2
2
2
2
2
2
2
2
2
2
2
C0410/22
C0410/11
C0410/12
C0410/13
C0410/14
C0410/23
C0410/3
C0410/4
C0410/17
2
DCTRL1-C0010...C0011
DCTRL1-OH-PCT-LP1-FAN-WARN
MCTRL1-VOLT-ADD
MCTRL1-DCB
MCTRL1-PHI-ADD
MCTRL1-NOUT+SLIP
MCTRL1-NOUT
MCTRL1-Imax
MCTRL1-VOLT
MCTRL1-IMOT
MCTRL1-DCVOLT
MCTRL1-MOUT
MCTRL1-(1/C0050)
C0412/6
C0410/15
C0412/8
C0412/9
MCTRL1-MSET
MCTRL1
2
2
2
2
2
2
2
2
PCTRL1
2
2
PCTRL1-I-OFF
PCTRL1-ACT
PCTRL1-SET1
PCTRL1-OFF
PCTRL1-STOP
PCTRL1-OUT
PCTRL1-SET=ACT
PCTRL1-SET
PCTRL1-ACT
PCTRL1-QMIN
PCTRL1-NMIN
PCTRL1-NADD
C0412/3
C0410/21
C0412/4
C0412/5
C0410/18
C0410/19
PCTRL1-NOUT
PCTRL1-SET3
NSET1
NSET1-RFG1-STOP
NSET1-TI1/3
NSET1-N1
NSET1-JOG1/3/5/7
NSET1-JOG2/3/6/7
NSET1-RFG1-I=0
NSET1-RFG1-IN
NSET1-N2
NSET1-NOUT
C0412/1
C0412/2
C0410/1
C0410/2
C0410/5
C0410/27
MPOT1
MPOT1-OUT
C0265
2
C0410/7
MPOT1-UP
C0410/8
MPOT1-DOWN
MPOT1-QSP
C0011
C0010
C0265=3,4,5
MPOT
INIT
MCTRL1-MSET1=MOUT
MCTRL1-MSET2=MOUT
NSET1-RFG1-0C0410/6
NSET1-TI2/3C0410/28
NSET1-JOG4/5/6/7C0410/33
PCTRL1-FADING
PCTRL1-RFG2-0
PCTRL1-NADD-OFF
PCTRL1-INV-ON
PCTRL1-FOLL1-0
PCTRL1-RFG2-LOAD-I
C0410/16
C0410/25
C0410/31
C0410/32
C0410/29
C0410/30
DCTRL1-CINHC0410/10
PCTRL1-LIM
2
2
PCTRL1-PID-OUT
AIF-IN
AIFCTRL.B0
AIFCTRL.B1
AIFCTRL.B2
AIFCTRL.B3
AIFCTRL.B4
AIFCTRL.B8
CINH
TRIP-SET
TRIP-RESET
AIFCTRL.B12
AIFCTRL.B15
DCTRL
16 Bit
16 Bit
AIF-CTRL
Byte 3,4
Byte 5,6
2
2
2
2
2
2
2
2
2
2
2
2
22
AIFCTRL.B9
AIFCTRL.B10
AIFCTRL.B11
QSP
DCTRL
AIF-IN1.W2
2
AIF-IN1.W1
2
AIF
DIGIN2
C0119
X2.2
1,4
0,3
T1
T2
2,5
WARN
TRIP
1
1
0
DIGIN1
X3
1
1
0
E1
E2
E6
E5
E4
E3
AIN1
+
AIN1-GAIN
+
AIN1-OFFSET
C0414/1
C0413/1
C0010
C0034/1
A
D
X3
AIN1-OUT
2
1U
7
AIN2
+
AIN2-GAIN
+
AIN2-OFFSET
C0034/2
A
D
AIN2-OUT
2
1I
X3
1U
7
1I
C0432/2
P1 (X/Y)
P2 (X/Y)
C0432/1
C0431/2
C0431/1
1
0
C0430
2
OFFSET
GAIN
C0413/2
C0414/2
DFIN1
DFIN1-OUT
Norm
Offset
Gain
+
+
C0425 C0427 C0426
2
C0410/24
10...17
10...17
0...7
0...7
1
1
0
0 100 kHz
0 100 kHz
0 100 kHz
0
C0411
C0411
8200vec502
Fig. 16.3-4 Overview of signal flow with Application I/O and communication module

Table of Contents

Related product manuals