EasyManua.ls Logo

Lenze EVF8217-EV020 - DIN-Rail Assembly

Lenze EVF8217-EV020
94 pages
Print Icon
To Next Page IconTo Next Page
To Next Page IconTo Next Page
To Previous Page IconTo Previous Page
To Previous Page IconTo Previous Page
Loading...
Installation
821XKlimaBA0399 4-5
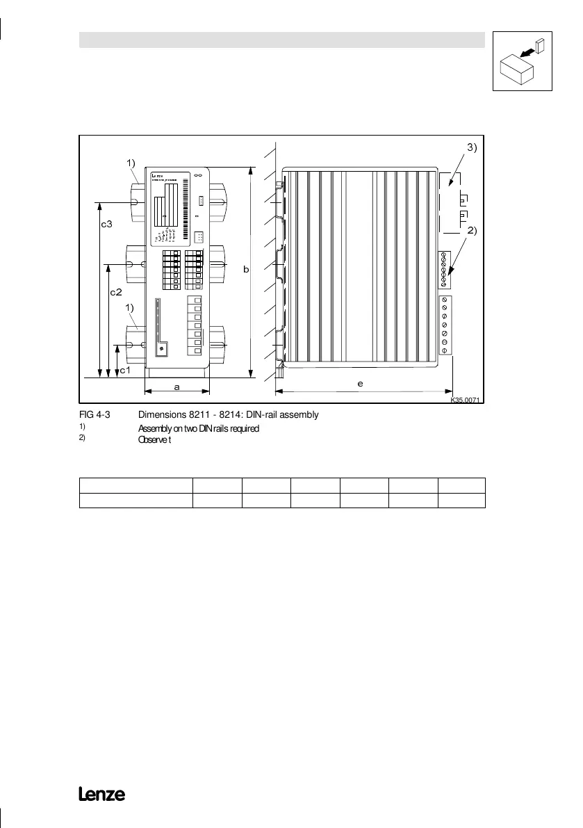
4.1.3 DIN-rail assembly
Typ
Id.-N R
Fert.-Nr
S erien -N r.
E in gang 1
E in gang 2
Lenze
Po stfach 101352,31763HAMELN
a
e
b
c1
2)
3)
c2
c3
1)
1)
K35.0071
FIG 4-3 Dimensions 8211 - 8214: DIN-rail assembly
1)
Assembly on two DIN rails required
2)
Observe the free space required for the connection cables
3)
With attachable fieldbus or I/O module:
Observe assembly depth and assembly space required for connection cables
[mm]
a b c1 c2 c3 e
3)
8211 / 8212 / 8213 / 8214 83 258 16 - 149 226
Show/Hide Bookmarks

Table of Contents

Related product manuals