EasyManua.ls Logo

Lenze i700 - Page 6

Lenze i700
20 pages
To Next Page IconTo Next Page
To Next Page IconTo Next Page
To Previous Page IconTo Previous Page
To Previous Page IconTo Previous Page
Loading...
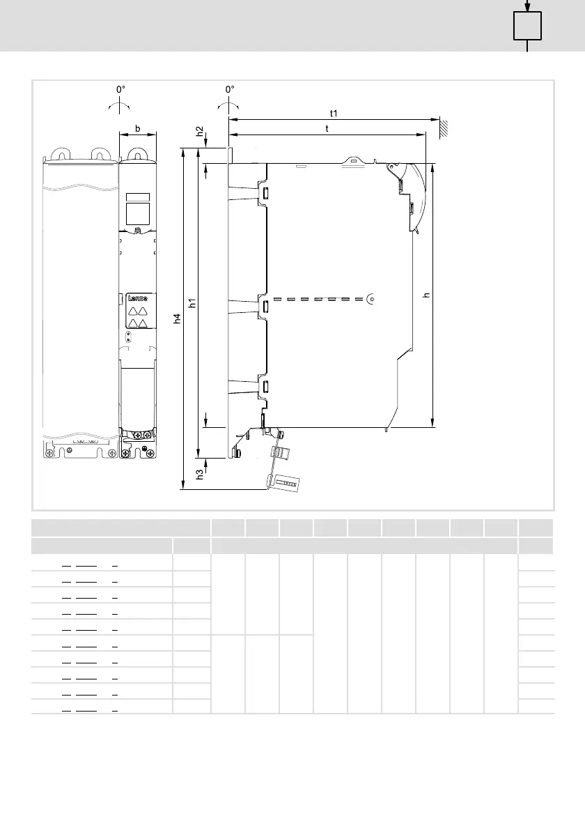
[mm] 1STANDARD
l
6
EDKE70AME064 DE/EN/FR/ES/IT 5.0
1
[mm]
STANDARD
i700P011 a
h b t h1 h2 h3 h4 t1 t2
[A] [mm] [kg]
E70ACMxE0054xx1xxx 5
350 50 261
410 20 40 452 275
2.7
E70ACMxE0104xx1xxx 10 2.7
E70ACMxE0204xx1xxx 20 2.7
E70ACMxE0054xx2xxx 2 * 5 2.9
E70ACMxE0104xx2xxx 2 * 10 2.9
E70ACMxE0324xx1xxx 32
350 100 261
5.2
E70ACMxE0484xx1xxx 48 5.2
E70ACMxE0644xx1xxx 64 5.2
E70ACMxE0204xx2xxx 2 * 20 5.2
E70ACMxE0324xx2xxx 2 * 32 5.2

Other manuals for Lenze i700

Related product manuals