EasyManua.ls Logo

Leslie 2101 - Leslie Speaker History and Speed Controls; A Brief History of the Leslie Speaker; Why Leslie Speed Controls?

Default Icon
35 pages
Print Icon
To Next Page IconTo Next Page
To Next Page IconTo Next Page
To Previous Page IconTo Previous Page
To Previous Page IconTo Previous Page
Loading...
12
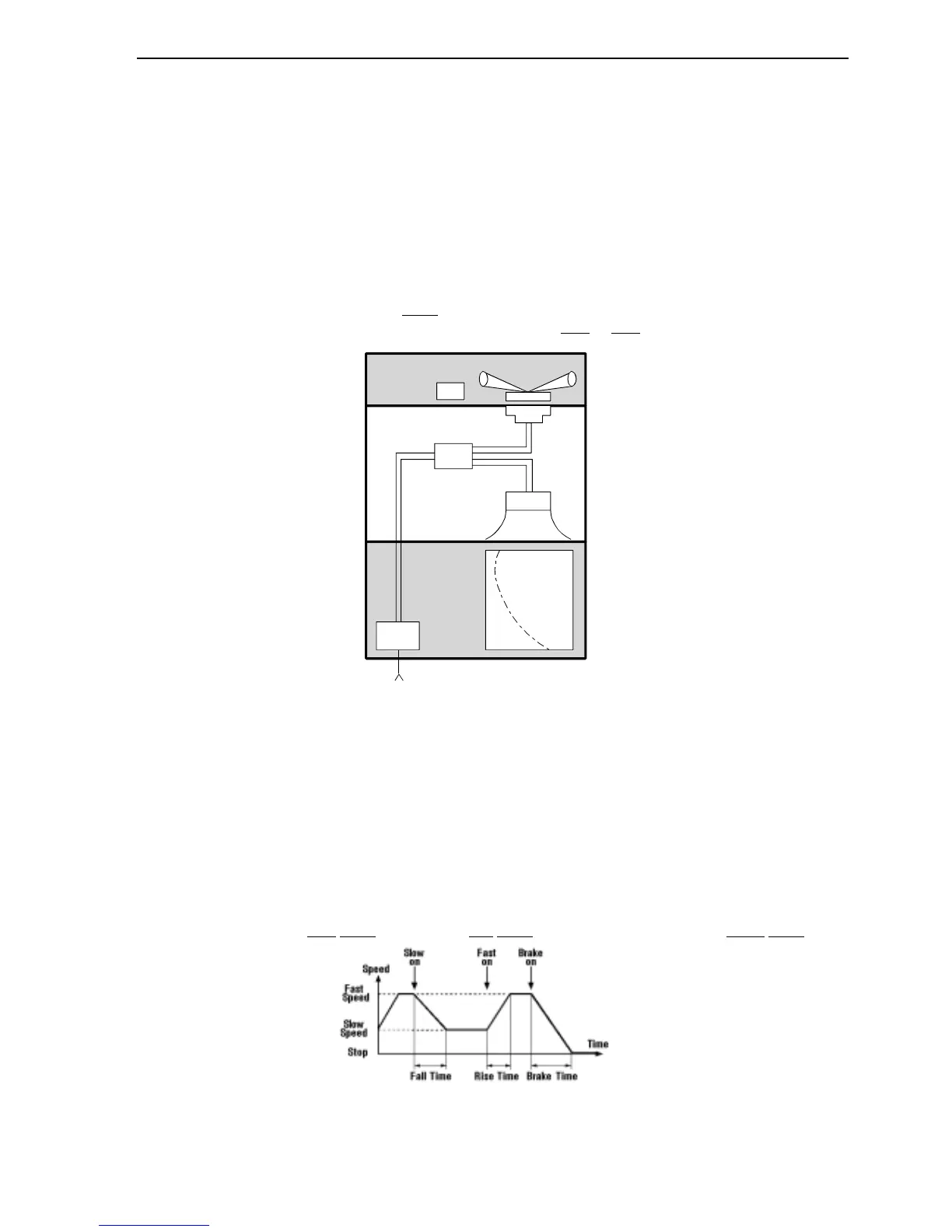
crossover
network
800 ~
15" sp eaker
2-speed
foam rotor
horn rotor
2-speed
40 watt
amp
sig nal input
Ë A Brief History of the Leslie Speaker
The Leslie Speaker was first developed in the late 1930's by Donald J. Leslie as a way to improve the
sound of then-current Hammond Organs. Mr. Leslie found that rotating a baffle in front of a stationary
speaker added a very pleasing “tremolo-type” sound to organ music. This technique is a musical
application of the “Doppler effect,” which is the apparent variation in pitch that a stationary listener hears
from a moving sound source. The loudness of the sound also appears to vary, and it is this combination
of frequency (vibrato) and amplitude (tremolo) modulation that give Leslie Speakers their characteristic
sound.
In the majority of Leslie Speakers, there are actually two rotating baffles and two speakers. One speaker
handles the high frequencies and is mounted in the upper part of the cabinet. The baffle and motor for
this speaker are collectively called the Horn
Rotor. The other larger speaker reproduces the bass or pedal
frequencies and uses a larger baffle, and is therefore called the Bass
or Low Rotor.
In addition to rotating a baffle at a high rate of speed to produce Tremolo, it is also possible to create a
pleasing “Chorale “ or “celeste” effect by rotating the baffle at a slow rate of speed - hence the rotor
speed designations of Fast and Slow. The Chorale or effect is similar the effect produced by two ranks
of pipes being slightly out of tune with each other and being played simultaneously on a pipe organ.
Ë Why Leslie Speed Controls?
For many years, Leslie Speakers only had one speed - Fast or Tremolo. Even after the Chorale speed
was introduced in the mid ‘60's. variations in the basic speed were introduced by relocating the motor
drive belt to a different pulley to make the baffles turn either faster or slower. Although each Leslie
Speaker cabinet was and is carefully calibrated at the factory, several factors such as motor age and
placement of the belts on the pulleys can affect the speeds of the rotors as well as the time required for
the rotors to speed up (Rise
Time), slow down (Fall Time) or come to a complete stop (Brake Time).
Your new Leslie Speaker features a new brushless DC-controlled motor for the Horn and a newly-
designed digital Low rotor which allows control of these parameters to an unprecedented degree. You
can now “customize” your Leslie Speaker to produce exactly the characteristics you want.

Related product manuals