EasyManua.ls Logo

Leviton 06674 - Installation Steps; Wire Preparation; Testing and Mounting; Restoring Power

Leviton 06674
2 pages
Print Icon
To Previous Page IconTo Previous Page
To Previous Page IconTo Previous Page
Loading...
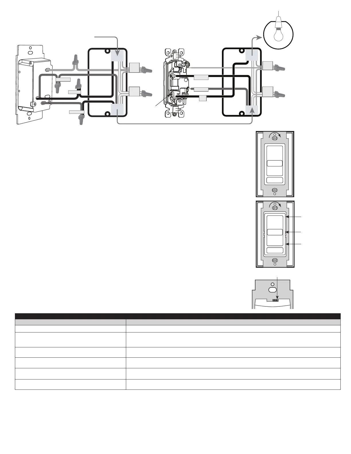
GROUND
NEUTRAL
3-Way Switch
From Dimmer
Dimmer
GROUND
NEUTRAL
To Light
From
Branch Circuit
To Switch
LINE
TRAVELER
1
TRAVELER 2
TRAVELER 1
TRAVELER 2
LOAD
For Technical Assistance Call: 1-800-824-3005 (USA Only) or 1-800-405-5320 (Canada Only) www.leviton.com© 2020 Leviton Mfg. Co., Inc.
FCC SUPPLIER’S DECLARATION OF CONFORMITY:
Model 6674 is sold by Leviton Manufacturing Co., Inc. 201 N. Service Rd., Melville, NY 11747.This device complies with part 15 of the FCC Rules. Operation is
subject to the following two conditions:
(1) This device may not cause harmful interference, and (2) this device must accept any interference received, including interference that may cause undesired
operation.
IC STATEMENT:
This device complies with Industry Canada licence-exempt RSS standard(s). Operation is subject to the following two conditions: (1) this device may not cause
interference, and (2) this device must accept any interference, including interference that may cause undesired operation of the device.
FCC CAUTION: Any changes or modifications not expressly approved by Leviton Manufacturing Co., Inc., could void the user's authority to operate the equipment.
FOR CANADA ONLY
For warranty information and/or product returns, residents of Canada should contact Leviton in writing at Leviton Manufacturing of Canada Ltd to the attention of
the Quality Assurance Department, 165 Hymus Blvd, Pointe-Claire (Quebec), Canada H9R 1E9 or by telephone at 1-800-405-5320.
LIMITED 5 YEAR WARRANTY For Leviton’s limited product warranty, go to www.leviton.com. For a printed copy of the warranty,call 1-800-824-3005.
Patents covering this product, if any, can be found on www.leviton.com/patents.
Programming
3-Way
5. Restore Power.
4. Mount.
TURN OFF POWER AT CIRCUIT BREAKER OR FUSE.
Screw to wallbox. Install wallplate.
3. Test.
Restore power at circuit breaker or fuse. WARNING: TO PREVENT SEVERE SHOCK OR ELECTROCUTION,
make sure your fingers do not touch the wires or the screw terminals!
Move dimming control to highest position. Lights should turn ON to brightest level.
NOTE: If lights does not turn ON, refer to the What to do if... section below.
AB
TOP
Mode selector switch
Maximum light
level adjust
SSL7A
Minimum light
level adjust
2. Wire. (continued)
Setting Minimum, Maximum or SSL7A Light Level
1. Turn the dimmer OFF.
2. Set Mode Selector Switch to Mode A.
3. To set the maximum light level move the slide bar to the top.
To set SSL7A mode, move slide bar to the position shown at right.
To set minimum light level move slide bar to the bottom.
NOTE: When entering the minimum adjustment mode, if the dimmer is set to the lowest level, the light may suddenly
turn OFF. If this happens, raise the light lever until the bulb turns on and the desired minimum light level is achieved.
4. Turn ON.
5. Set Mode Selector Switch to Mode B.
6. Move the slide bar to achieve the desired light level (NOTE: For SSL7A mode do not move the slide bar). Set the
Mode Selector Switch back to Mode A.
7. A momentary flash of the bulb will occur confirming the new setting.
8. Turn the dimmer OFF.
Select Mode
For bulbs which do not turn on smoothly or inconsistently perform when turning on, set to Mode B.
Mode switch is also used during programming.
Mode A : When turned on, light quickly ramps up to preset light level. (Pre-set to this mode at factory.)
Mode B: When turned on, light instantly come on at preset light level.
What to do if...
Issue Make this adjustment
Lights do not turn ON immediately Move Mode Selector Switch to Mode B
Lights flickering
Check bulb connection.
Make sure wires are secured firmly with wire connectors
If flickering occurs during startup, move Mode Selector Switch to Mode B
CFL and LED flickers at low end of dimming range
Increase the low end of the dimming range.
Programming Section - setting minimum light level
CFL and LED flickers at high end of dimming range
Decrease the high end of the dimming range.
Programming Section - setting maximum light level
CFL or LED bulb flickers throughout dimming range
Ensure the bulbs are marked dimmable.
Please refer to recommended dimmable LED and CFL bulbs at www.leviton.com/LED.
Light does not turn ON
Check to see if the circuit breaker or fuse has tripped.
Check to see if the bulb is burned out.
FCC STATEMENT: This device complies with Part 15 of the FCC Rules. Operation is subject
to following two conditions: (1) this device may not cause harmful interference, and (2)
this device must accept any interference received, including interference that may cause
undesired operation of the device. This equipment has been tested and found to comply with
the limits for a Class B Digital Device, pursuant to Part 15 of the FCC Rules. These limits
are designed to provide reasonable protection against harmful interference in a residential
installation. This equipment generates, uses, and can radiate radio frequency energy and, if
not installed and used in accordance with the instructions, may cause harmful interference
to radio communications. However, there is no guarantee that interference will not occur in a
particular installation. If this equipment does cause harmful interference to radio or television
reception, which can be determined by turning the equipment OFF and ON, the user is
encouraged to try to correct the interference by one or more of the following measures:
Reorient or relocate the receiving Antenna. • Increase the separation between the
equipment and the receiver.
Connect the equipment into an outlet on a circuit different from that to which the receiver
is connected.
• Consult the dealer or an experienced radio/tv technician for help.
Black screw
(Common)

Related product manuals