EasyManua.ls Logo

Leviton DDS8800 - Page 2

Leviton DDS8800
12 pages
Print Icon
To Next Page IconTo Next Page
To Next Page IconTo Next Page
To Previous Page IconTo Previous Page
To Previous Page IconTo Previous Page
Loading...
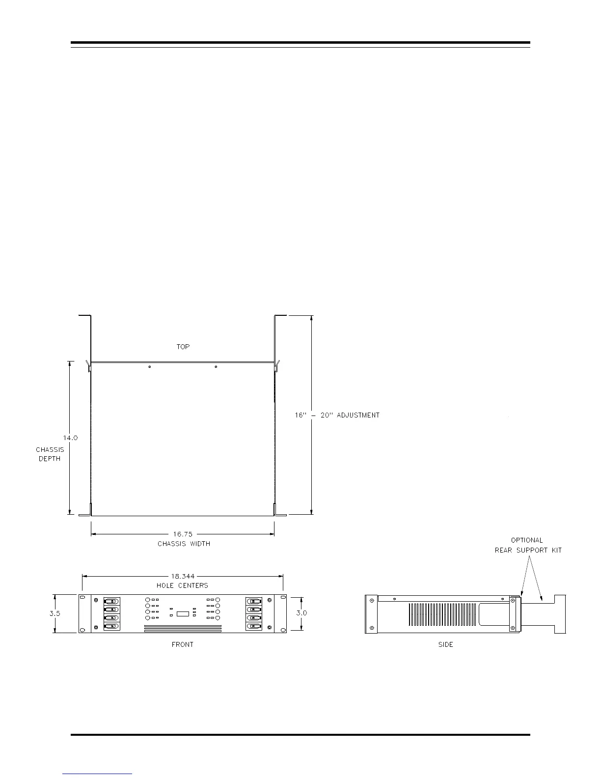
MOUNTING
The NSI DDS rack mountable dimmers are designed to be mounted in a standard 19" EIA rack. The packs are provided with two
mounting flanges or ‘‘ears’’ designed for securing to the front rack mounting rails.
The optional REAR SUPPORT KIT must be used in all cases where the rack is portable and prone to bumps and rough handling.
The NSI DDS rack dimmers depend upon forced air cooling. The rack enclosure shall allow a 2 in. clearance on each side of
the dimmer to insure adequate air exhaust. In some cases where exhaust air flow is obstructed, additional exhaust fans should
be used to remove hot air from the rack. Free flow of room air to the front of the dimmer packs must be insured. Any front cover
on the rack must be removed during operation. Keep the air vents located on the front and each side of the dimmer pack clear of
dust or any obstructions.
If units are to be operated in a small enclosed room, adequate ventilation must be provided to prevent the room temperature from
exceeding 100 degrees fahrenheit
AC Lighting Loads, Only.
For Indoor Use Only
Utilizer Dans Un Endroit A LAbri
INSTALLATION AND OPERATION GUIDE DDS 86/88/96/9800 DIMMER PACKS
MOUNTING Software Revision 1.41, Version C UL, Mfg Q3/96, and above
2 NSI CORPORATION

Related product manuals