EasyManua.ls Logo

LG 75XE3C - To Connect External Devices

LG 75XE3C
127 pages
Print Icon
To Next Page IconTo Next Page
To Next Page IconTo Next Page
To Previous Page IconTo Previous Page
To Previous Page IconTo Previous Page
Loading...
ENGLISH
20
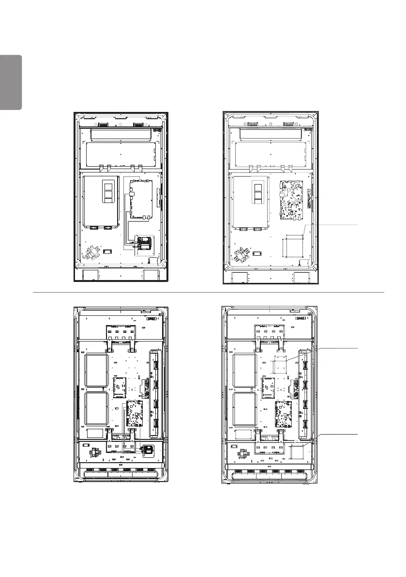
To Connect External Devices
When Installing a Media Player Internally
- 55XE3C (Unit: mm(inches))
128
140
4-M3(0.1) Mounting Hole
(5.5)
(5.0)
- 75XE3C (Unit: mm(inches))
140
128
140
128
4-M3(0.1) Mounting Hole
4-M3(0.1) Mounting Hole
(5.5)
(5.0)
(5.5)
(5.0)
Remove the rear cover.
Mount the media player after using the bracket for the media player.
Screw hole: M3.0, Torque - 5 Kgf to 10 Kgf
See the included guide for details on cable connection.

Table of Contents

Other manuals for LG 75XE3C

Related product manuals