EasyManua.ls Logo

LG GC-L207 - Trouble Diagnosis: Dew and Ice Formation

LG GC-L207
145 pages
To Next Page IconTo Next Page
To Next Page IconTo Next Page
To Previous Page IconTo Previous Page
To Previous Page IconTo Previous Page
Loading...
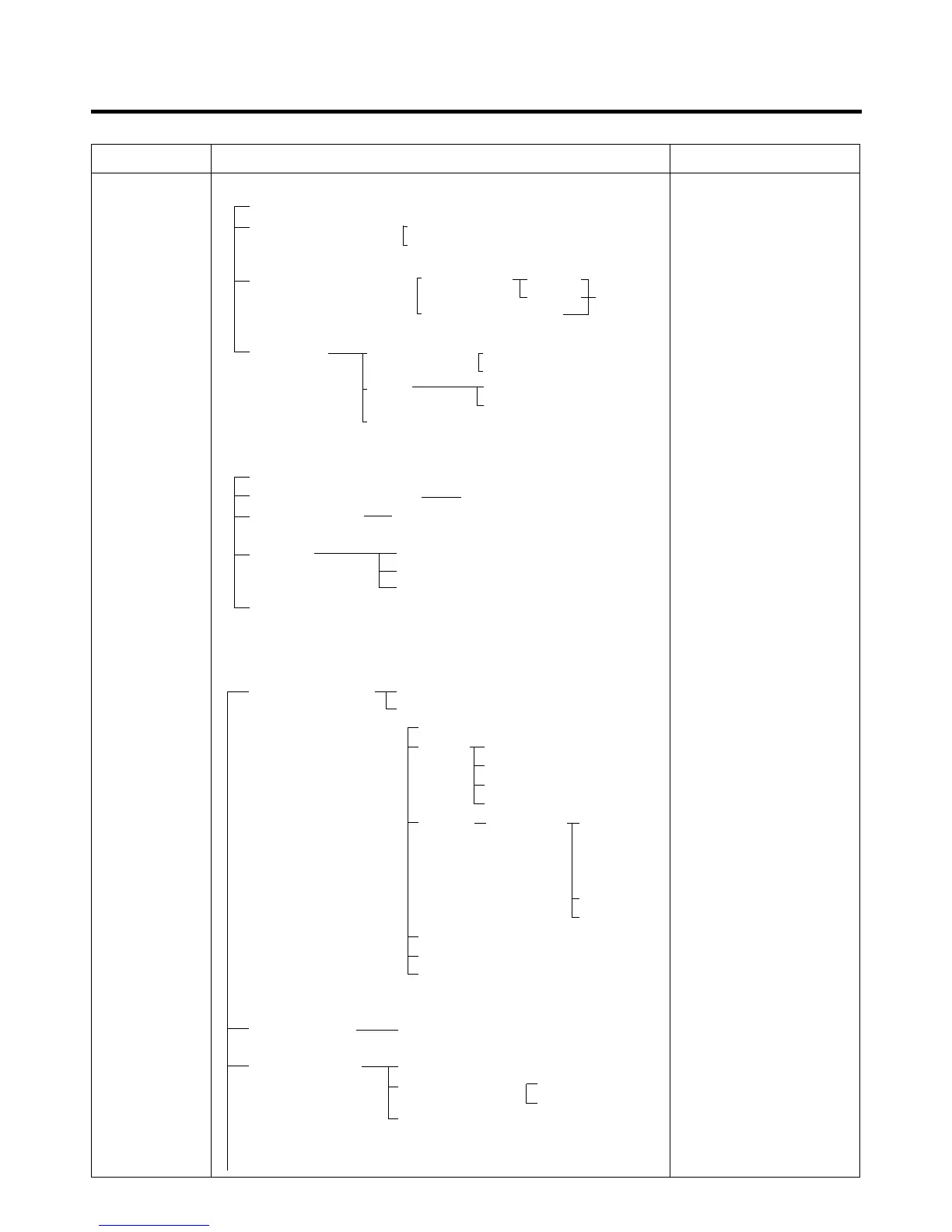
TROUBLE DIAGNOSIS
- 101 -
CLAIMS. CAUSES AND CHECK POINTS. HOW TO CHECK
6. Dew and
ice formation.
7. Sounds
4) Dew on door.
Dew on the duct door. - Duct door heater is cut.
Dew on the dispense
recess.
Dew on the door surface. Not fully filled. Surface.
Cormer.
P/U liquid contraction.
Dew on the
gasket surface.
5) Water on the floor.
Dew in the refrigerator compartment.
Defrosted water overflows. Clogged discharging hose.
Discharging hose Evaporation tray located at wrong place.
location.
Tray drip. Damaged.
Breaks, holes.
Small Capacity.
Position of drain.
1) Compressor compartment operating sounds.
Compressor sound Sound from machine itself.
inserted. Sound from vibration.
Restrainer.
Rubber Too hard.
seat. Distorted.
Aged.
Burnt.
Stopper. Bad Stopper Not fit
assembly. (inner
diameter
of stopper).
Tilted.
Not
Compressor base not connected.
Bad welding compressor stand(fallen).
Foreign materials in the compressor
compartment.
O.L.P.
sound.
Chattering
sound.
Insulation paper vibration.
Capacitor noise.
Pipe contacts each other. – Narrow interval.
Pipe sound. No vibration damper. Damping rubber-Q.
Damping rubber-S.
Capillary tube unattached.
Recess Heater is cut.
Duct door is open. / Foreign material clogging.
Bad wing adhesion. Wing sag(lower part).
Door liner shape mismatch.
Corner. Too much notch.
Broken.
Home Bar heater is cut.
Liquid shortage.
Liquid leak.

Table of Contents

Related product manuals