EasyManua.ls Logo

LG LB-E608HL - Refrigeration Cycle Diagram; System Flow and Piping Specs

LG LB-E608HL
41 pages
Print Icon
To Next Page IconTo Next Page
To Next Page IconTo Next Page
To Previous Page IconTo Previous Page
To Previous Page IconTo Previous Page
Loading...
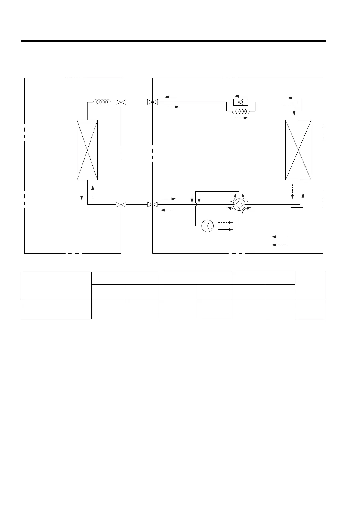
Refrigeration Cycle Diagram
• MODEL: LB-E6080HL
(§ Rated performance for refrigerant line length of: 5m)
For installation over rated distance, 70g of refrigerant should be added for each meter.
ex) When installed at a distance of 15m, 525g of refrigerant should be added.
(15-7.5) x 70g = 525g
Pipe size(Diameter: ø) Piping length(m) Elevation(m)
MODEL
Gas Liquid Rated Max. Rated Max.
LB-E6080HL 3/4" 1/2" 5 30 5 30 70
INDOOR UNIT OUTDOOR UNIT
HEAT
EXCHANGER
HEAT
EXCHANGER
COMPRESSOR
GAS SIDE
LIQUID SIDE
COOLING
HEATING
REVERSING
VALVE
CHECK VALVE
CAPILLARY TUBE
–7–
Additional
refrigerant
(g/m)

Related product manuals