EasyManua.ls Logo

LG MULTI V ARNU183NJA4 - Dimensions - Vertical Air Handling Unit NJ Chassis

LG MULTI V ARNU183NJA4
94 pages
Print Icon
To Next Page IconTo Next Page
To Next Page IconTo Next Page
To Previous Page IconTo Previous Page
To Previous Page IconTo Previous Page
Loading...
32
Multi V Ducted Indoor Units
Due to our policy of continuous product innovation, some specifications may change without notification.
©LG Electronics U.S.A., Inc., Englewood Cliffs, NJ. All rights reserved. “LG” is a registered trademark of LG Corp.
GENERAL DATA
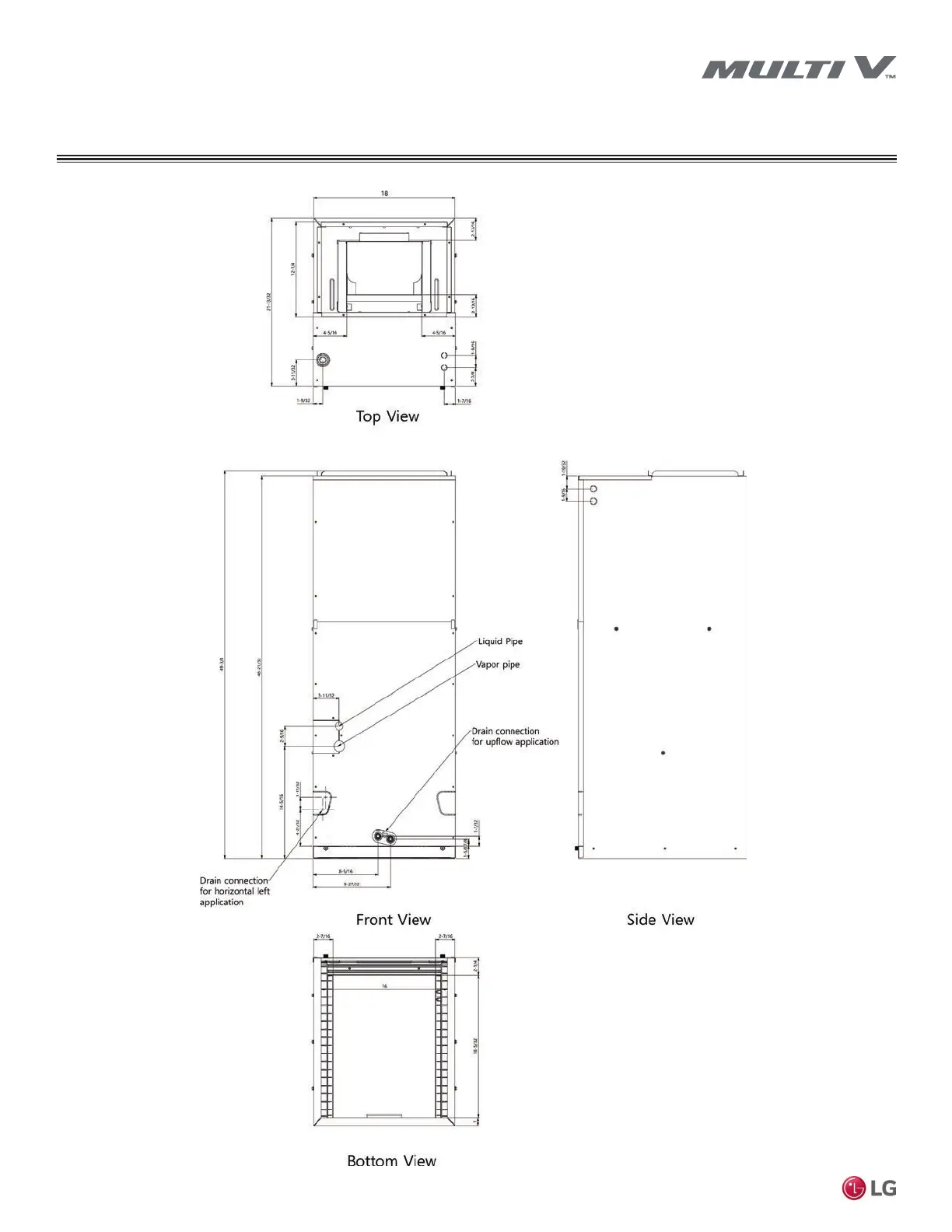
Dimensions – Vertical Air Handling Unit NJ Chassis

Table of Contents

Related product manuals