EasyManua.ls Logo

LG MULTI V ARNU183NJA4 - M1 Chassis Wiring

LG MULTI V ARNU183NJA4
94 pages
Print Icon
To Next Page IconTo Next Page
To Next Page IconTo Next Page
To Previous Page IconTo Previous Page
To Previous Page IconTo Previous Page
Loading...
75
Installation Manual
Due to our policy of continuous product innovation, some specifications may change without notification.
©LG Electronics U.S.A., Inc., Englewood Cliffs, NJ. All rights reserved. “LG” is a registered trademark of LG Corp.
WIRING
Mid-Static Ducted M1 Chassis
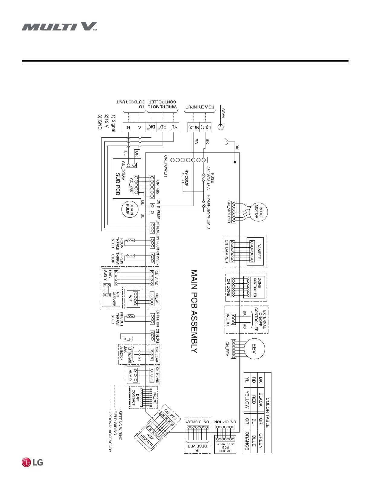
Figure 73: Mid-Static Ducted M1 Chassis Wiring Diagram
Optional Connections
Figure 73 shows the control board for the M1 chassis. Connect optional equipment to the control board as required for your system.

Table of Contents

Related product manuals