EasyManua.ls Logo

LG MULTI V ARNU183NJA4 - MA Chassis Wiring

LG MULTI V ARNU183NJA4
94 pages
Print Icon
To Next Page IconTo Next Page
To Next Page IconTo Next Page
To Previous Page IconTo Previous Page
To Previous Page IconTo Previous Page
Loading...
73
Installation Manual
Due to our policy of continuous product innovation, some specifications may change without notification.
©LG Electronics U.S.A., Inc., Englewood Cliffs, NJ. All rights reserved. “LG” is a registered trademark of LG Corp.
WIRING
Convertible Mid-Static Ducted MA Chassis
Optional Connections
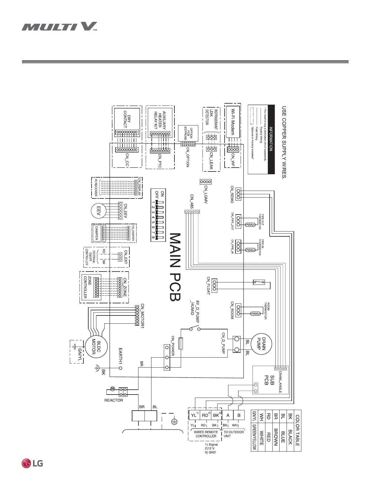
Figure 72 shows the control board for the MA chassis. Connect optional equipment to the control board as required for your system.
Figure 72: Convertible Mid-Static Ducted MA Chassis Wiring Diagram
MEZ65014864 Rev.01 020224
FUSE_H
250 V / T 5 A
POWER INPUT
L(L1) N(L2)
3/24
*Indicated function is optional or factory installed depending on the
applicable model.
*Optional parts are sold separately.

Table of Contents

Related product manuals