EasyManua.ls Logo

LG MULTI V ARNU18GTQA4 - Piping Diagrams

LG MULTI V ARNU18GTQA4
520 pages
To Next Page IconTo Next Page
To Next Page IconTo Next Page
To Previous Page IconTo Previous Page
To Previous Page IconTo Previous Page
Loading...
Console _ 5
Indoor Units
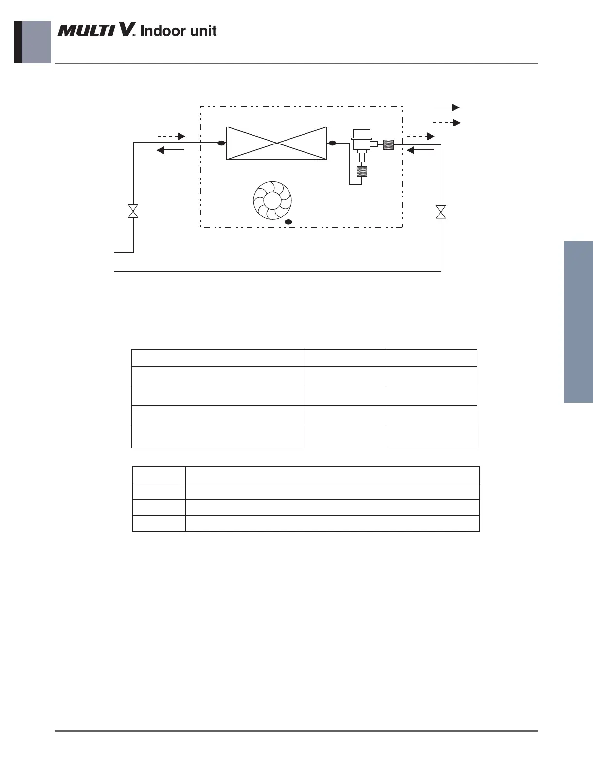
4. Piping Diagrams
Heat Exchanger
Turbo Fan
Th3
Th1
Th2
lndoor unit
EEV
:Heating
:Cooling
Filter
Filter
Refrigerant pipe connection port diameter
[Unit: mm(inch)]
Model
ARNU07GQAA4
ARNU09GQAA4
ARNU12GQAA4
ARNU15GQAA4
Gas
Ø12.7(1/2)
Ø12.7(1/2)
Ø12.7(1/2)
Ø12.7(1/2)
Liquid
Ø6.35(1/4)
Ø6.35(1/4)
Ø6.35(1/4)
Ø6.35(1/4)
LOC. Description
Th1 Room thermistor
Th2 Pipe in thermistor
Th3 Pipe out thermistor

Table of Contents

Related product manuals