EasyManua.ls Logo

LG MULTI V ARNU24GTPA4 - Page 181

LG MULTI V ARNU24GTPA4
520 pages
To Next Page IconTo Next Page
To Next Page IconTo Next Page
To Previous Page IconTo Previous Page
To Previous Page IconTo Previous Page
Loading...
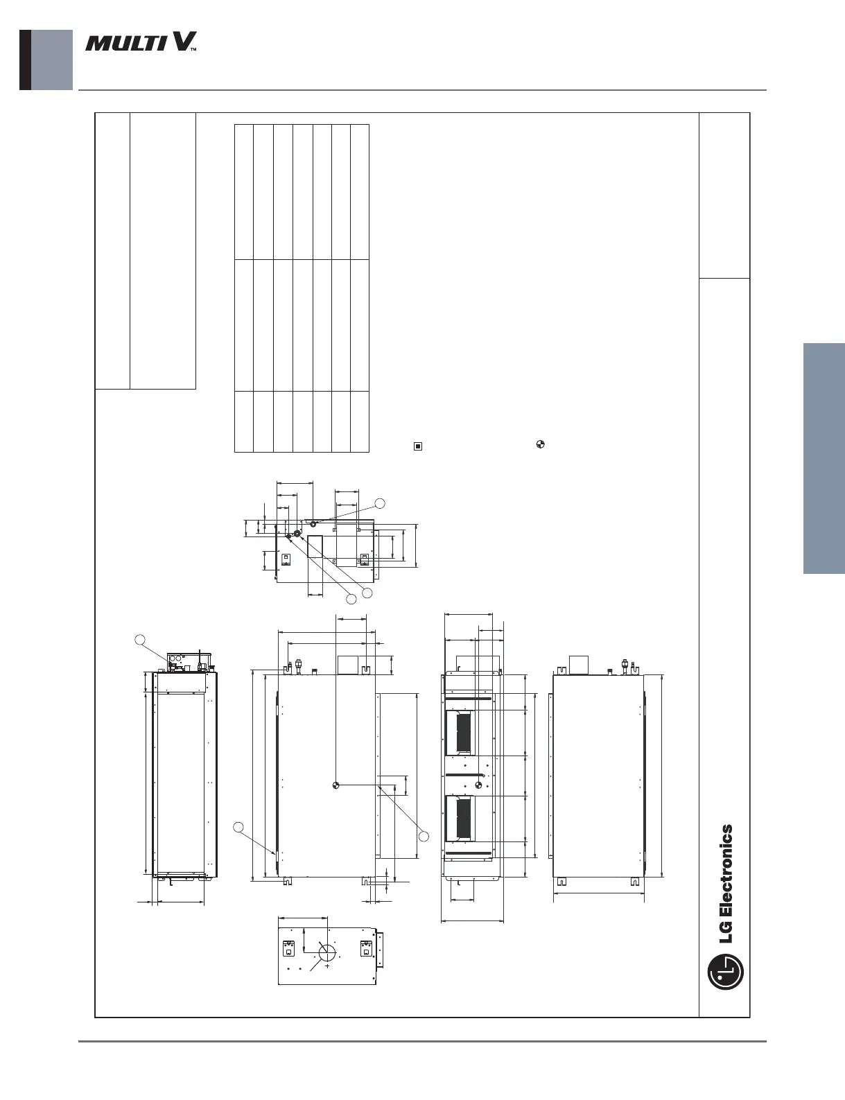
Indoor unit
3. Dimensions & Gravity point
Ceiling Concealed Duct (High Sensible)
_ 7
Indoor Units
CHASSIS CODE: BR
Ceiling Concealed Duct - High Sensible
ARNU18GBRA4
ARNU24GBRA4
ARNU28GBRA4
Note
1. Unit should be installed in compliance with the installation manual
in the product box.
2. Unit shall be grounded in accordance with the local regulations or
applicable national codes.
221
123
72
26
83
101
90
135
122
144
260
190
115
1,282
477
56
590
118
1,006
114
1,230
50
32
178
294
177
177
215
279
1,004
241
279
380
140
215
1201,092
25
303
Name
1
Liquid pipe connection
2
Gas pipe connection
3
Drain pipe connection
4
Power supply connection
5
Air discharge
6
Air suction
Number Descripition
(unit : mm)
3
2
1
5
6
4
198
312
60
R60
590
1,230
Gravity point
302
174
174
177
174
621
Unit size(18k,24k,28k):Ø9.52
Unit size(18k,24k,28k):Ø15.88

Table of Contents

Other manuals for LG MULTI V ARNU24GTPA4

Related product manuals