EasyManua.ls Logo

LG MULTI V ARNU36GBGA4 - Page 325

LG MULTI V ARNU36GBGA4
520 pages
To Next Page IconTo Next Page
To Next Page IconTo Next Page
To Previous Page IconTo Previous Page
To Previous Page IconTo Previous Page
Loading...
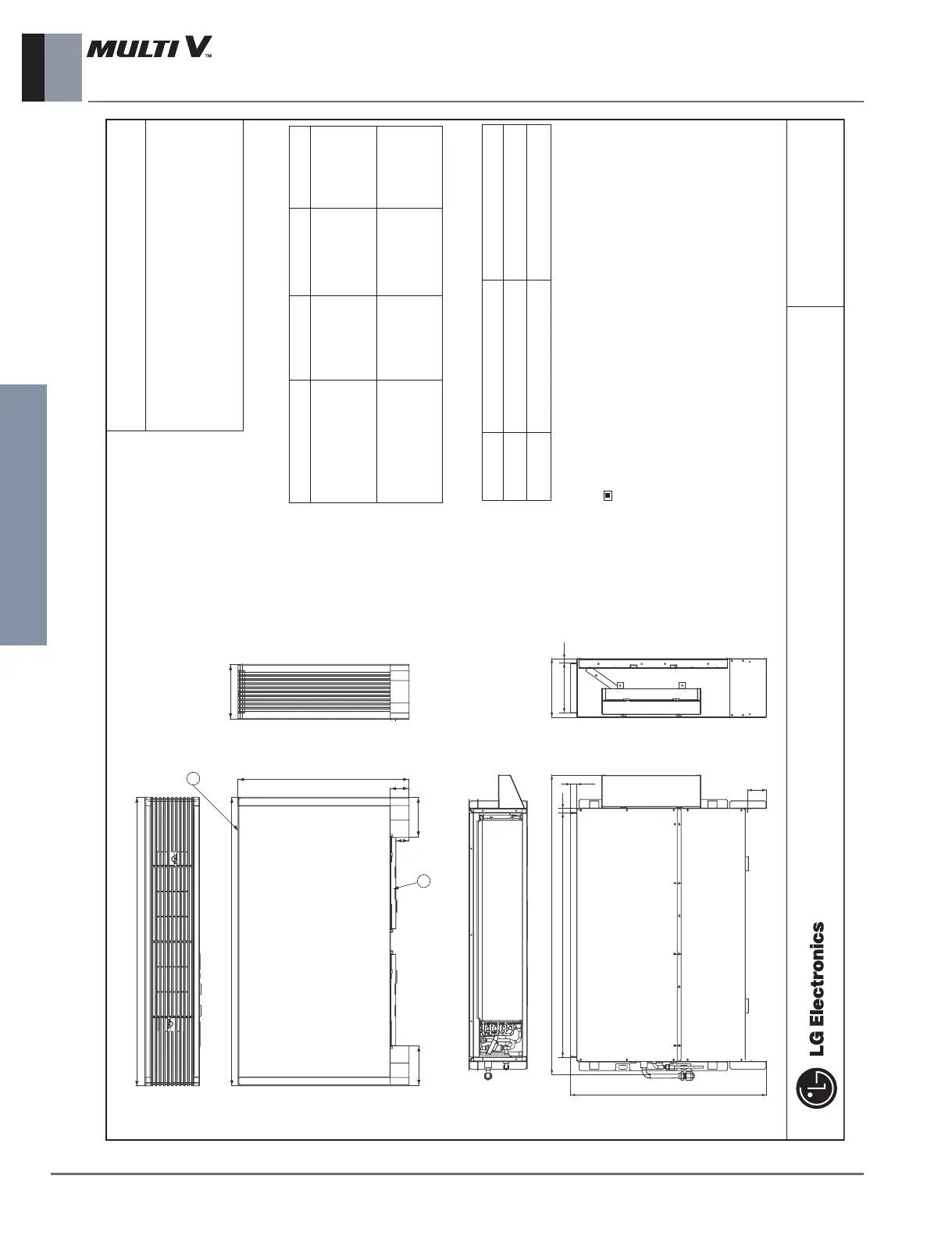
CHASSIS CODE: CE
Floor Standing
ARNU07GCEA4
ARNU09GCEA4
ARNU12GCEA4
ARNU15GCEA4
ARNU07GCEU4
ARNU09GCEU4
ARNU12GCEU4
ARNU15GCEU4
Note
1. Unit should be installed in compliance with the installation manual
in the product box.
2. Unit shall be grounded in accordance with the local regulations or
applicable national codes.
<With Case>
<Without Case>
1067
1067
148.3
148.3
49
70
635
203
978
794
639
13
20.4
62.8
190
161
14
WModel
ARNU07GCEA4
ARNU09GCEA4
ARNU12GCEA4
ARNU15GCEA4
HD
1067 635 203
ARNU07GCEU4
ARNU09GCEU4
ARNU12GCEU4
ARNU15GCEU4
978 639 190
(unit : mm)
Name
1
Air discharge grill
2
Air suction grill
Number Descripition
(unit : mm)
1
2
6 _ Floor Standing
Indoor unit
3. Dimensions
Indoor Units

Table of Contents

Other manuals for LG MULTI V ARNU36GBGA4

Related product manuals