EasyManua.ls Logo

LG MULTI V ARNU54GBRA4 - Piping Diagrams

LG MULTI V ARNU54GBRA4
520 pages
To Next Page IconTo Next Page
To Next Page IconTo Next Page
To Previous Page IconTo Previous Page
To Previous Page IconTo Previous Page
Loading...
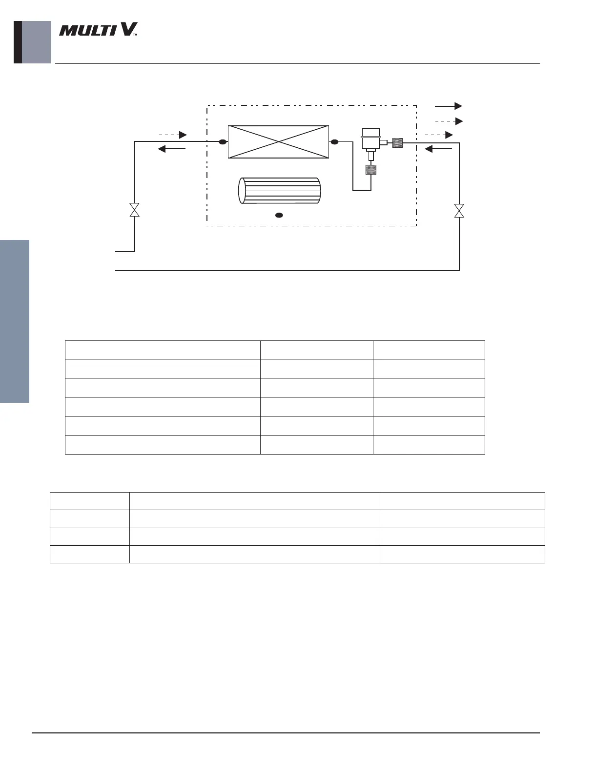
4. Piping Diagrams
Indoor unit
8 _ Ceiling Concealed Duct(High Static)
Indoor Units
BG, BR Chassis
Heat Exchanger
Sirocco Fan
Th3
Th1
Th2
lndoor unit
EEV
:Heating
:Cooling
Filter
Filter
Refrigerant pipe connection port diameter
MODEL GAS LIQUID
ARNU28GBGA4 Ø15.88(5/8) Ø9.52(3/8)
ARNU36GBGA4 Ø15.88(5/8) Ø9.52(3/8)
ARNU42GBGA4 Ø15.88(5/8) Ø9.52(3/8)
ARNU48GBRA4 Ø15.88(5/8) Ø9.52(3/8)
ARNU54GBRA4 Ø15.88(5/8) Ø9.52(3/8)
[Unit: mm(inch)]
LOC. Description PCB Connector (Color)
Th1 Thermistor for room air temperature CN-ROOM (Yellow)
Th2 Thermistor for pipe in temperature CN-PIPE_IN (White)
Th3 Thermistor for pipe out temperature CN-PIPE_OUT (Red)

Table of Contents

Other manuals for LG MULTI V ARNU54GBRA4

Related product manuals