EasyManua.ls Logo

LG multi V ARUB160BT3 - Page 74

LG multi V ARUB160BT3
133 pages
To Next Page IconTo Next Page
To Next Page IconTo Next Page
To Previous Page IconTo Previous Page
To Previous Page IconTo Previous Page
Loading...
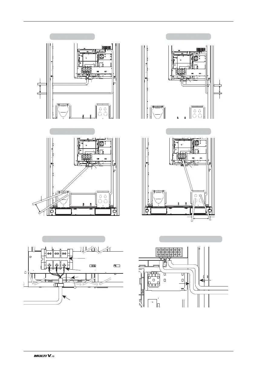
74 Outdoor Unit
u UX2 Chassis Wire Connection
Ground Cable
Power/Ground lines
Over 50mm Gap
Communication line
Main Power Terminal BlockMain Power Terminal BlockMain Power Terminal Block
Insulation sleeves attachmentsInsulation sleeves attachmentsInsulation sleeves attachments
Main Power Terminal Block
Insulation sleeves attachments
Main Power Terminal Block
Insulation sleeves attachments
Left Side
Ground Cable
Communication line
Power/Ground lines
Over 50mm Gap
Main Power Terminal Block
Insulation sleeves attachments
Main Power Terminal BlockMain Power Terminal BlockMain Power Terminal Block
Insulation sleeves attachmentsInsulation sleeves attachmentsInsulation sleeves attachments
Main Power Terminal Block
Insulation sleeves attachments
Right Side
Ground Cable
Communication line
Power/Ground lines
Over
50mm Gap
Main Power Terminal Block
Insulation sleeves attachments
Main Power Terminal Block
Insulation sleeves attachments
Main Power Terminal BlockMain Power Terminal BlockMain Power Terminal Block
Insulation sleeves attachmentsInsulation sleeves attachmentsInsulation sleeves attachments
Front Side 1
Main Power Main Power
Terminal BlockTerminal Block
Main Power
Terminal Block
Insulation sleeves attachments
Fix firmly not to be displaced
ODU-ODU
Communication line
Ground CableGround CableGround Cable
Main Power
Terminal Block
ODU-IDU
Communication line
ODU-ODU
ODU-ODU
Communication lineCommunication line
ODU-ODU
Communication line
Ground Cable
Communication line
Power/Ground lines
Over 50mm Gap
Ground Cable
Main Power Terminal BlockMain Power Terminal BlockMain Power Terminal Block
Insulation sleeves attachmentsInsulation sleeves attachmentsInsulation sleeves attachments
Front Side 2
Main PCB ConnectionMain Power Connection
Electrical Wiring

Related product manuals