EasyManua.ls Logo

LG Multi V Series

LG Multi V Series
203 pages
To Next Page IconTo Next Page
To Next Page IconTo Next Page
To Previous Page IconTo Previous Page
To Previous Page IconTo Previous Page
Loading...
20 | HIGH STATIC
MULTI V Ducted Indoor Unit Engineering Manual
Due to our policy of continuous product innovation, some specications may change without notication.
© LG Electronics U.S.A., Inc., Englewood Cliffs, NJ. All rights reserved. “LG” is a registered trademark of LG Corp.
DUCTED HIGH STATIC
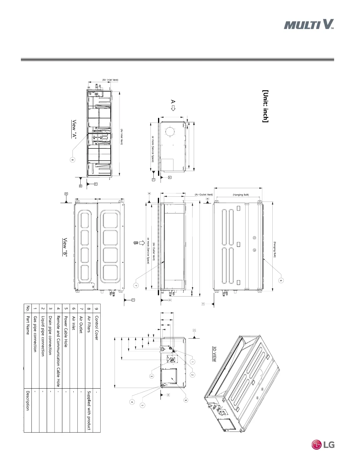
External Dimensions
M3 Units
Figure 5: ARNU283~543M3A4 Dimensions.
12-21/32
12-27/32
12-3/4
14-27/32
14-3/16
11-7/16
27-3/16
24-3/8
7-3/8
6-27/32
5-1/2
1-3/32
50-9/16
54-11/32
49-1/4
3-5/8
13/16
2-7/32
6-5/32
6-3/4
7-15/16
12-23/32
28-9/16
47-19/32
49-3/16
27-19/32
26-3/16
2-1/32
27-1/8
47-9/16

Other manuals for LG Multi V Series

Related product manuals