EasyManua.ls Logo

LG Multi V Series - Page 22

LG Multi V Series
203 pages
To Next Page IconTo Next Page
To Next Page IconTo Next Page
To Previous Page IconTo Previous Page
To Previous Page IconTo Previous Page
Loading...
22 | HIGH STATIC
MULTI V Ducted Indoor Unit Engineering Manual
Due to our policy of continuous product innovation, some specications may change without notication.
© LG Electronics U.S.A., Inc., Englewood Cliffs, NJ. All rights reserved. “LG” is a registered trademark of LG Corp.
DUCTED HIGH STATIC
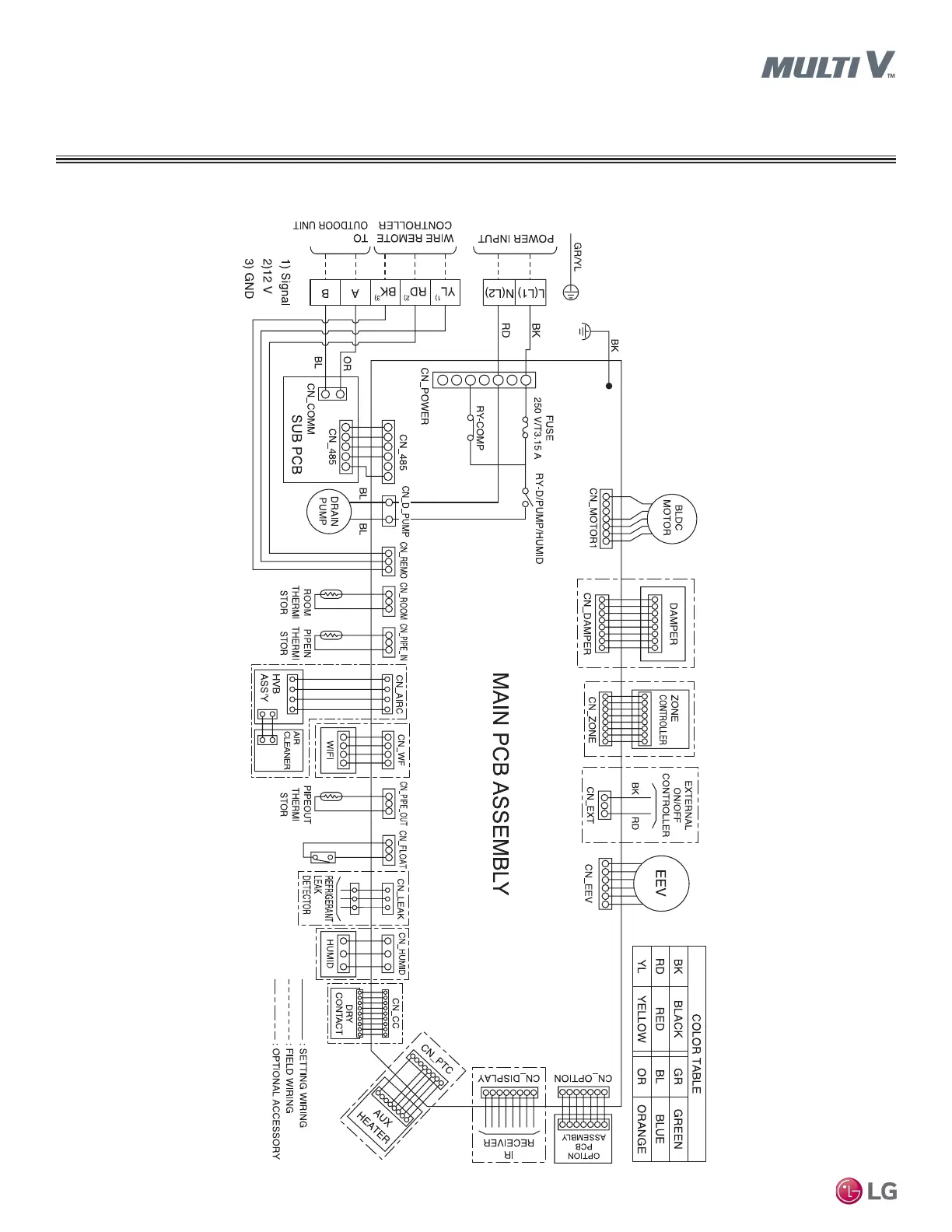
Electrical Wiring Diagram
BH Units
Figure 7: ARNU073~243BHA4 Wiring Diagram.

Other manuals for LG Multi V Series

Related product manuals