EasyManua.ls Logo

LG PDRYCB300 - Setting of OPER_SW

LG PDRYCB300
25 pages
Print Icon
To Next Page IconTo Next Page
To Next Page IconTo Next Page
To Previous Page IconTo Previous Page
To Previous Page IconTo Previous Page
Loading...
Installation manual 1918 Dry contact for thermostat
ENGLISH
Setting and using method
Notes
• IDU Fan logic, depending on model selected, may delay IDU fan operation momentarily during a cold
start heat call. This function allows IDU coil to warm up prior to operating fan in some IDU models.
• Thermostats that use resistive anticipation are not supported at this time.
• Verify documentation of desired thermostat so that the logic is same as shown in the table above.
Thermostat
LG does not supply this section
(Field supply)
LOW
MIDDLE
HIGH
L
L
N
LL
Operation
FAN
HEAT
COOL
COMM
C
AC 24 V
RGWY
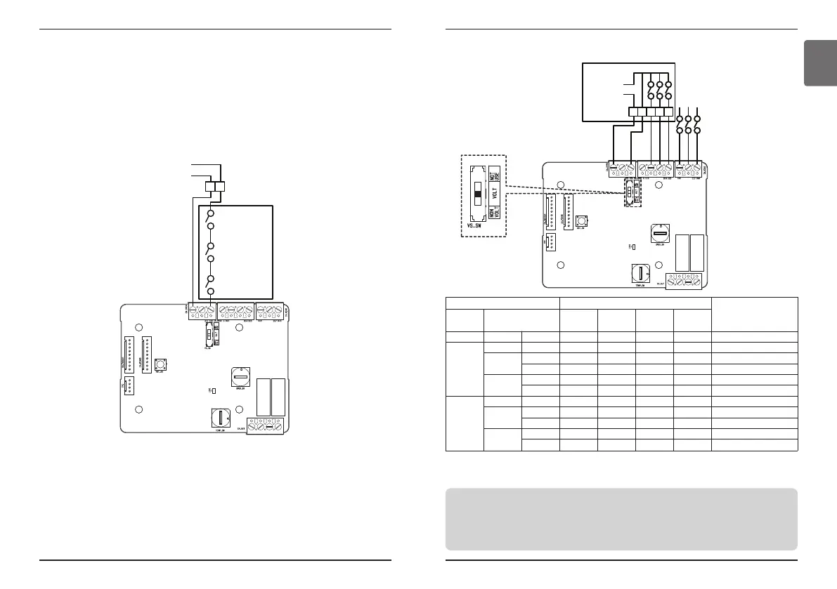
n For conventional thermostat signal input
Thermostat Fan & System Switch Input
IDU Response
[Mode / Thermal / Fan]
FAN
[Auto / On]
MODE
[Cool / Heat / Off]
Operation
FAN
[G]
HEAT
[W]
COOL
[Y]
- - - 0 - - - Disable Operation
Auto
OFF - 1 0 0 0 Off
Cool
RT > SP 1 1 0 1 Cool / On / On
RT < SP 1 0 0 0 Enable
Heat
RT < SP 1 1 1 0 Heat/ On/On
RT > SP 1 0 0 0 Off
ON
FAN - 1 1 0 0 Fan/ Off/ On
Cool
RT > SP 1 1 0 1 Cool/ On/ On
RT < SP 1 1 0 0 Fan/ Off/ On
Heat
RT < SP 1 1 1 0 Heat/ On/ On
RT > SP 1 1 0 0 Fan/ Off/ On
Setting and using method
n Details of Installation for thermostat
1) In case of Occupancy sensor,
- When motion is detected by the sensor, Indoor unit is enabled.
- Otherwise, Indoor unit is disabled.
2) In case of Emergency Stop or Security option.
- When emergency condition occurs, Indoor unit is disabled.
- Otherwise, Indoor unit is enabled.
Reference Cases
C
AC 24 V
L
N
R
Security
Emergency Stop
Occupancy Sensor
RT : Room Temperature
SP : Set Point