EasyManua.ls Logo

LG PDRYCB300 - Indoor Unit Monitoring; Function Table for the Input Signal (for AWHP Indoor Unit)

LG PDRYCB300
25 pages
Print Icon
To Next Page IconTo Next Page
To Next Page IconTo Next Page
To Previous Page IconTo Previous Page
To Previous Page IconTo Previous Page
Loading...
Setting and using method
Installation manual 2120 Dry contact for thermostat
ENGLISH
Setting and using method
6. Indoor unit monitoring
7. Function table for the input signal (For AWHP Indoor unit)
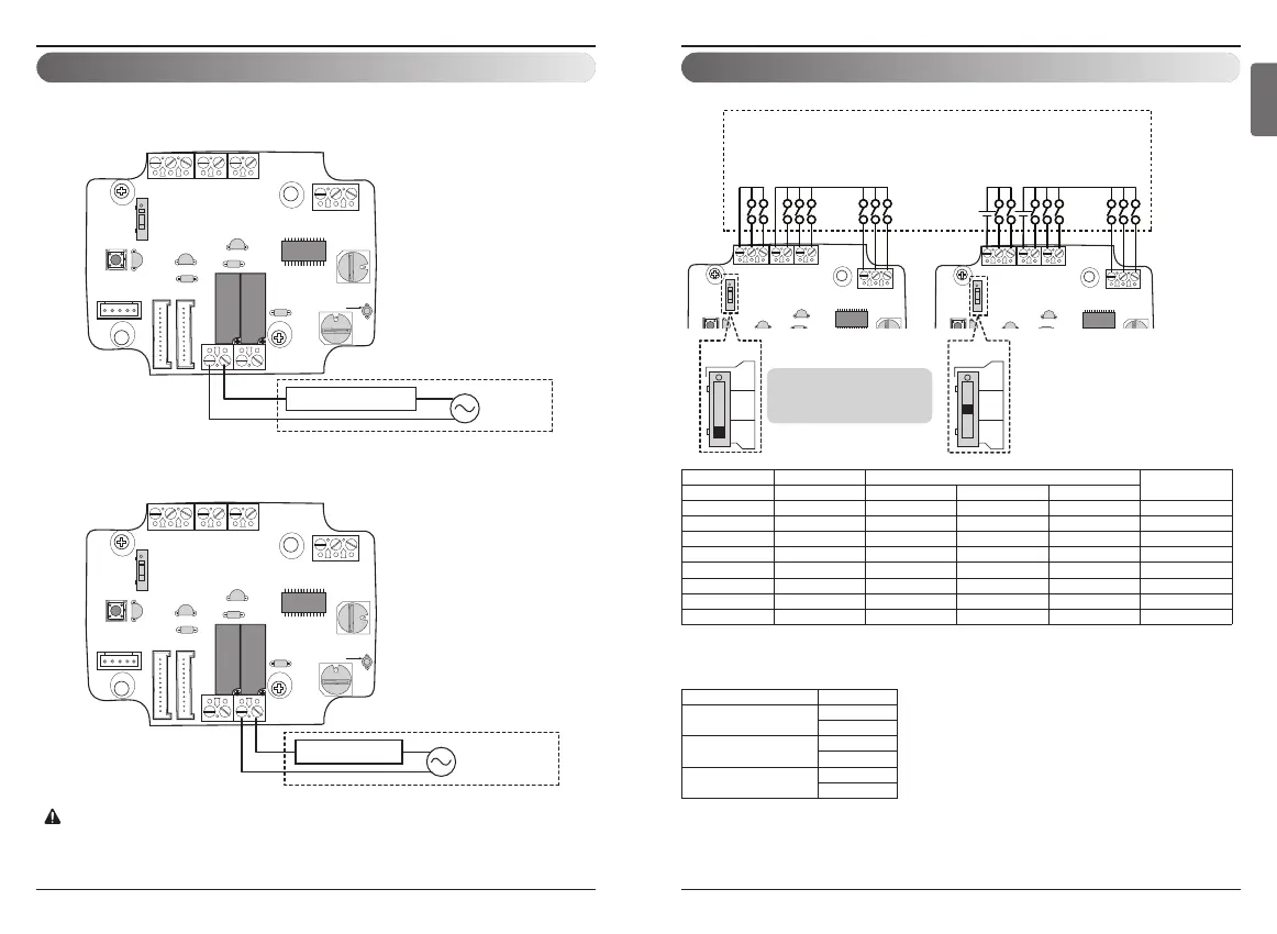
n Monitoring whether the indoor unit is operating: Refer to
below and connect to the control device that you want to
control.
CHANGEOVER_SW
RESET_SW
CN_Ther/Oper CN_MODE
CN_WIND
CN_INDOOR
DISPLAY_LED
TEMP_SW
SETTING_SW
CN_OUT
CN_PI485
CHANGEOVER_SW
RESET_SW
CN_Ther/Oper CN_MODE
CN_WIND
CN_INDOOR
DISPLAY_LED
TEMP_SW
SETTING_SW
CN_OUT
CN_PI485
Error Display
Field Supply
(Depends on Operation display power type)
Power
AC or DC
Field Supply
(Depends on Error display power type)
Power
AC or DC
Operation Display
Field supply power should not use more than DC 12 V(3A), 24 V~(3A)
CAUTION
n Monitoring indoor unit error: Refer to below and connect to
the control device that you want to control.
CHANGEOVER_SW
CN_Ther/Oper CN_MODE
CN_WIND
CHANGEOVER_SW
CN_Ther/Oper CN_MODE
CN_WIND
Notes
Do not input the voltage signal in
"NON VOLT" setting mode otherwise
it will cause serious damage
NOT
USE
CHANGE
OVER_SW
VOLT
NON
VOLT
NOT
USE
CHANGE
OVER_SW
VOLT
NON
VOLT
Connect separate
External voltage of
DC 12 V, 24 V~
COMM
Themal
Operation
COMM
AUTO
HEAT
COOL
DHW
NIGHT SILENT
EMERGENCY MODE
DHW
NIGHT SILENT
EMERGENCY MODE
COMM
Themal
Operation
COMM
AUTO
HEAT
COOL
Thermostat
LG does not
supply this section
(Field supply)
No power input DC 12 V, 24V ~
If CN_Oper input was 0(Operation stop), CN_Ther input and CN_Mode input don't work.
If CN_Ther input was 0(Thermal Off), CN_Mode input doesn't work.
If both CN_Oper input and DHW input were 0(Stop, Off), Night silent input and Emergency mode input
don't work.
CN_Oper CN_Ther CN_Mode
Function
Operation Thermal AUTO HEAT COOL
1 1 0 0 0 NA
1 1 0 0 1 COOL
1 1 0 1 0 HEAT
1 1 0 1 1 NA
1 1 1 0 0 AUTO
1 1 1 0 1 NA
1 1 1 1 0 NA
1 1 1 1 1 NA
CN_WIND Function
DHW
On
Off
NIGHT SILENT
On
Off
EMERGENCY MODE
On
Off