EasyManua.ls Logo

LG TS-C092YDA0 - Piping Diagrams

LG TS-C092YDA0
7 pages
Print Icon
To Next Page IconTo Next Page
To Next Page IconTo Next Page
To Previous Page IconTo Previous Page
To Previous Page IconTo Previous Page
Loading...
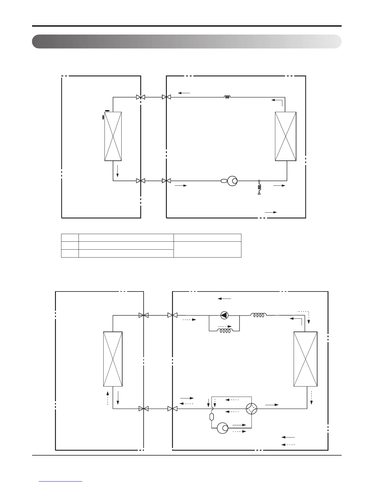
2. Piping Diagrams
Service Manual 3
tinU roodtuOtinU roodnI
Heat
Exchanger
(Evaporator)
Heat
Exchanger
(Condenser)
Capillary Tube
Compressor
Accumulator
Gas Side
3-Way Valve
2-Way Valve
Liquid Side
Cooling
High Pressure S/W
Th1
Th2
rotcennoC BCPnoitpircseD.COL
Th1 Thermistor for indoor air temperature
CN-TH1
Th2 Thermistor for evaporating temperature
TINU ROODTUOTINU ROODNI
HEAT
EXCHANGE
(EVAPORATOR)
HEAT
EXCHANGE
(CONDENSER)
COMPRESSOR
ACCUMU
LATOR
GAS SIDE
3-WAY VALVE
LIQUID SIDE
3-WAY VALVE
CAPILLARY TUBE
CHECK VALVE
(Heating Model only)
COOLING
HEATING
REVERSING
VALVE
(Heating Model Only)
(2) Cooling & Heating Models
(1) Cooling

Related product manuals