EasyManua.ls Logo

Lochinvar 399 - LADDER DIAGRAM 399,999 - 750,000 BTU;HR MODELS

Lochinvar 399
72 pages
Print Icon
To Next Page IconTo Next Page
To Next Page IconTo Next Page
To Previous Page IconTo Previous Page
To Previous Page IconTo Previous Page
Loading...
Installation and
Service Manual
65
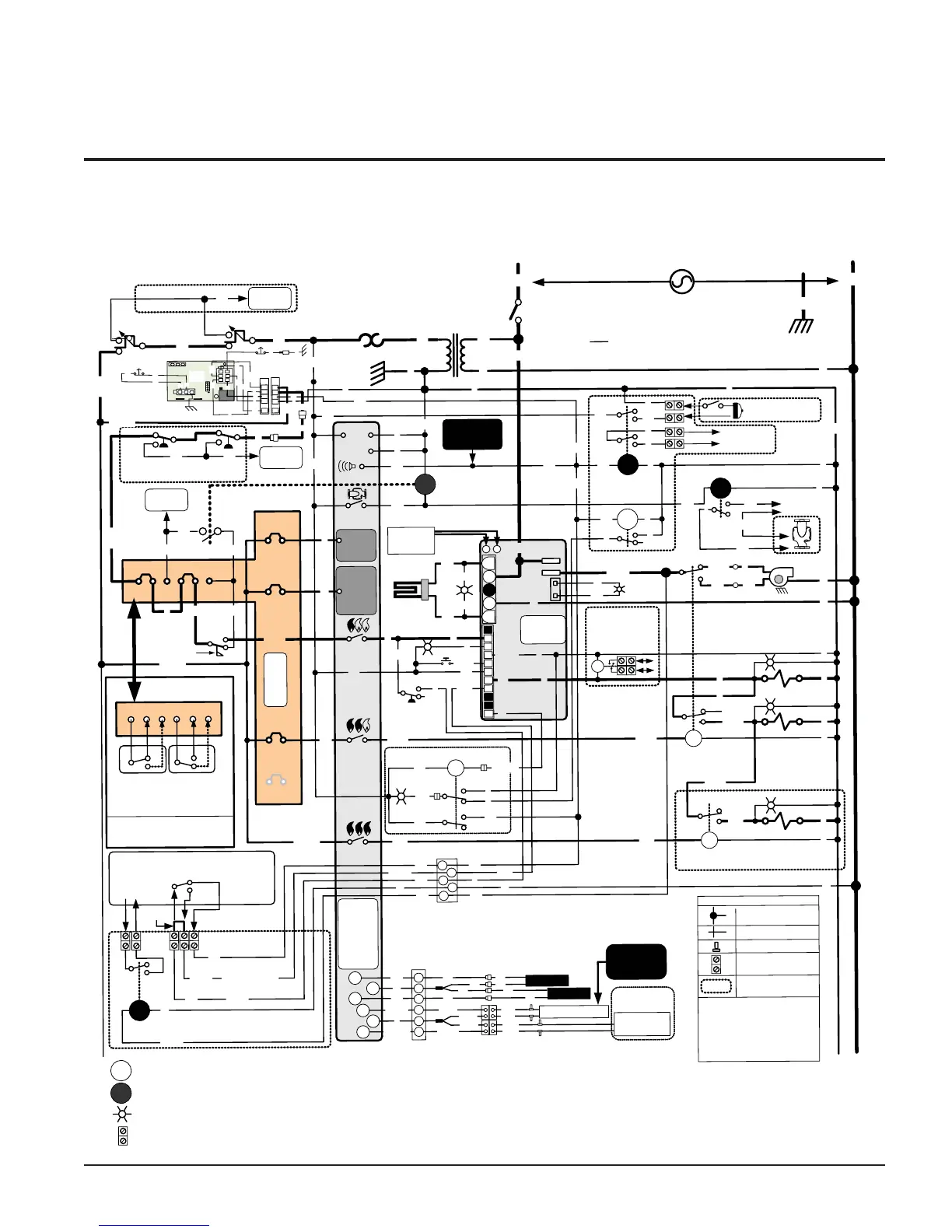
LADDER DIAGRAM 399,999 - 750,000 BTU/HR
MODELS
NC
N
C
NO
ALARM
I
NPUTS
1, 2, &
3
JOIN HE
RE
S2/
FS
-
+
F2
F1
NEU
LINE
S
1
O
R
P
RESSURE
SWITCH
R
ESET
PUR GE
GY
GY
PUMP RELAY
B
K
STAGE
#2
STAGE
#1
1615
18
1
7
20
19
HEAT
DEM
#
1
ELECTRONIC
TEMP ERA
TURE
CONTROLLER
O
P
TI
ONA
L
RUN TIME
RELAY
C
ONTACTS
LBL20008 REV A
24 VAC
1224
23
120 VAC
1
14
13
+
-
HD-
Y
Y
W
CHASSIS
GROUND
-
INTER
MITTENT
ALARM ENABL
E
REL
AY
Y
Y
2
N
O2C
1NO
1
C
3
N
O3C
BK/W
G
W
Y
O
PTIONA
L
CONTACT
S
ANY FAIL
UR
E
IGNITER
TRIAL
GY
GY
BK
P
O
O
BR
BR
W
CIRCUIT BREAKER
BL
+
A
LARM
CO
NTACTS
OPTIONAL
ALARM
BELL 24V
OU
TPUT
S
ILENCE
BL
G
BL
Y
A
1B
1
A
2A3 B2B3
CONTINUOUS INTERMITTENT
FLOW
SWITCH
O
Y
CHASSIS
GROUND
SENSORS
BK
1
2
BK
LARTUENENIL
GROUND
O/
BK
BL
S
TAGE #1
STAG
E
#3
Y
Y
Y
W
W
R
R/O
R/BK
BL
R
120 VAC 15 AMPS
60Hz
O/B
K
R/
B
K
Y
P
R
PR
Y
PR
BR/
W
BR
/W
B
R
BR
W
PR
PR
T
PR/BK
PR/BK
BR/W
B
R/W
BR/W
PR
/
BK
P
R/
B
K
BR
/
W
Y
Y
PROVING
SWITCH
MOTOR
CONTACTS
BK/W
ON/OFF
POWER
SWITCH
FIELD SUPPLIED
LOUVER/
POW
ER VEN
TER
C
ONNECTI
ON
S
(1) WHE
R
E
POSSI
BLE,
ALL SWITCHES AND
C
IRCUITRY ARE
S
HOWN IN THEIR
AT REST STATES.
NOTES
:
(2)
A
D
D
I
TION OF
EN
E
RGY MANAGEMENT SYSTEMS OR OPTIONAL LIMIT
S
W
ITCHE
S TO THE TERMINAL
ITEM INDICATES
CLOSED
END
SP
LI
CE
JUNCTION
P
O
I
NT
(
ELECTRICAL LY SA ME
)
T
=TAN
Y=YELLOW
BR=BROWN
G=GREE
N
GY =GRAY
W =
WHIT
E
BK
=
BLACK
PR=PU
R
P
LE
BL=
B
L
UE
P
=
PINK
O=ORANGE
(3)
WHEN
REPLACING DA
MAGED
WIRI
N
G, USE EQUIVALE
N
T TYPE AND GAUGE.
TD
P
P
BL/
BK
Y
PUMP
S
TA
G
E #2
STAGE #3
AE
PU
L
E
BL/W
OPTI
ONAL
LOUVER/
VE
NTER CONTROL RELAY
R
R
=
RE
LAYS L
OCATED O
N
CONTR
O
L
PANEL
=
RELAYS
LOCAT
ED IN WI
R
I
NG BOX
OPEN
CL
OSED
COM
C2
NO2
Y/
G
= YEL L OW
WIT
H
GREEN STRI PE
R=RED
HD#1
H
D#2
ALAR
M
INPUT 1
PR
A1
B
1A
2A3 B2 B3
CONTINUOUSLY
M
ONIT
O
RED
INTE
R
MIT
T
E
N
TLY
M
ONIT
O
RED
FIELD INSTALLED
S
AFETY DEVI
C
ES
N
OTE:
SHOWN
WI
TH
SHORTING
BARS
REMOVED AND A
TTACHED
DEVI
C
E
S
IN NON
-ALARM
S
TATE.
CONT
INUOU
SINTERMI
TTENT
C
OM COM
F
A
I
L
OK O
K
F
A
I
L
H
IGH /LOW GAS, AUX .
H
I
-LIM
IT
AU
X. LIMI
TS
,
E
XT.
F
L
O
W SWI
TCH
EXAMPLE DEVICES:
BK
4
2
3
STAGE #1
S
TAGE #3
STAG
E
#2
PR
BR
1
2
6
5
4
3
O
U
TLET
B
R
BR
PR
PR
PR
24VAC
PI
RESET
PS
TH
24CO
M
M
V
1
2
4
5
6
7
8
9
1
1
3
1
0
-
+
STATUS
8
9
7
6
4
5
T/
W
Y
~
~
~
~
~
~
BL
T
ER
MIN
AL
S
TRIP
IGNIT
ION
MODULE
ALARM
INPUT 2
P
R/BK
P
R
P
B
L/
B
K
SYSTEM/TAN
K
O.A.
SE
NSOR
FLAME
CURRENT
TEST PINS
RT
BK
W
G
Y
G
Y
P
UMP
OPT
I
ONA
L
O
N
BO
I
LE
RS
BL
WARNING:
THIS HEATER MAY BE
CONNECTED TO ONE OR MORE BRANCH
CIRCUITS. TO PREVENT ELECTRICAL SHOCK,
ENSURE ALL
BRANCH CIRCUITS ARE DE-
ENERGIZED BEFORE ATTEMPTING TO SERVICE
THIS EQUIPMENT.
OPTIONA
L
BOI
L
ER
ON
LY
I
N
LET
R/BK
2
RESET
OVERRI
DE
3
H
EAT
DEM
#2
R
/
O
FIELD
I
N
STALL AS
NECESSARY
C
N.O.
R
EMOVE
J
UMPE
R
STRIP
R
EQUIRE THE
REM
OVAL
O
F SOME OF THE SHOR
TING BARS FROM THE
T
ERMINAL STRIP.
R
R
PR/BK
O
5
1
OPTIONAL
P
R
PR
AL
Y
P
Y
PR
PR
= LED
S
LOCATED ON DI
S
PLAY
BOARD
= OPTIONAL DI
N RAIL CONNE
CTO
RS
L
OCATED IN ELECTRI
CAL
W
IRIN
G BOX.
C
NO
PR
OPTIONAL HIGH-LOW G
A
S
PRESS
URE
S
W
ITCHES
PR
LOWH
I
GH
I
NT
ERMITT
E
NT
ALAR
M
ENA BLE
RELAY
C
C
NO
NO
C
NO
NO
C
NO
P
4NO4C
STAGE #4
BL/B
K
S2
R/O
C
NO
Y
S3
C
NO
B
LOWER
W
~~~~
~~~~
B
K
LOW
C
R/BK
Y
R
R
BR/W
PR
B
R
I
G
N M
O
D - PS
P-SW
FF
PR/B
K
THREE
ST
AGE
MOD
ELS
ONLY
.
AUX. HI-LIMIT
PR
ALARM
INPUT 3
BL
OPTIONAL
MAN. RESET
BR
T
BL
PR
BR/
W
LOUVER PROVING
C
O
NNECTOR
R/BK
R/O
P
STA
G
ING RELAY
S
TAGI
N
G
RE
LAY
A
LARM
FFR
Y
B
L
PR/
B
K
N
O
C
BL
B
R
W
W
BK
PR
T
BK
T/W
W
BK/
R
BK
H
IGH
5
4
3
2
1
W
LINES C
R
O
SS
OVE
R
DOTTED
LI
NE
I
N
D
I
CATES OPTIONAL
EQUIPMENT
D
I
N R
A
I
L CONNECTOR
EX
AM
PL
E:
SCHEMATIC DIAGRAM
SI
NGLE IG
N
I
TI
O
N MODULE UNIT
C
BK
TO POWE
R
SOURCE
W
J3
5
4
6
1
2
3
O.C.
J1
J2
3
2
1
J4
P
GND
G
N
D
RESET
PR
T
PROBE
9
6
5
7
5
7
6
9
BL
O
PR
PR
4
4
BL
Y
Y
PR
BL/
BK
BL/
BK
BL
/
B
K
BL/BK
O/ BK
RESET
~
~
~
~
~
~
~
~
~
~
~
~
Y
O
PR
O
O
PR
BL
PR
24 VAC
LWCO
PR
TEST

Table of Contents