EasyManua.ls Logo

LockMaster SCG 18H - Connecting of the Control Board; Motor and Start Capacitor Connections; Limit Switches and Alarm Lamp Wiring; Photocell and Push Button Wiring

LockMaster SCG 18H
19 pages
Print Icon
To Next Page IconTo Next Page
To Next Page IconTo Next Page
To Previous Page IconTo Previous Page
To Previous Page IconTo Previous Page
Loading...
12
Connecting of the Control Board
1. Motor
The BLACK wire of the motor should be connected into the “6” terminal.
The RED wire of the motor should be connected into the “7” terminal.
The YELLOW wire of the motor should be connected into the “8” terminal.
2. Start Capacitor
One pin of the start capacitor should be wired to the “7” terminal, another to “8” terminal.
3. Limit Switches
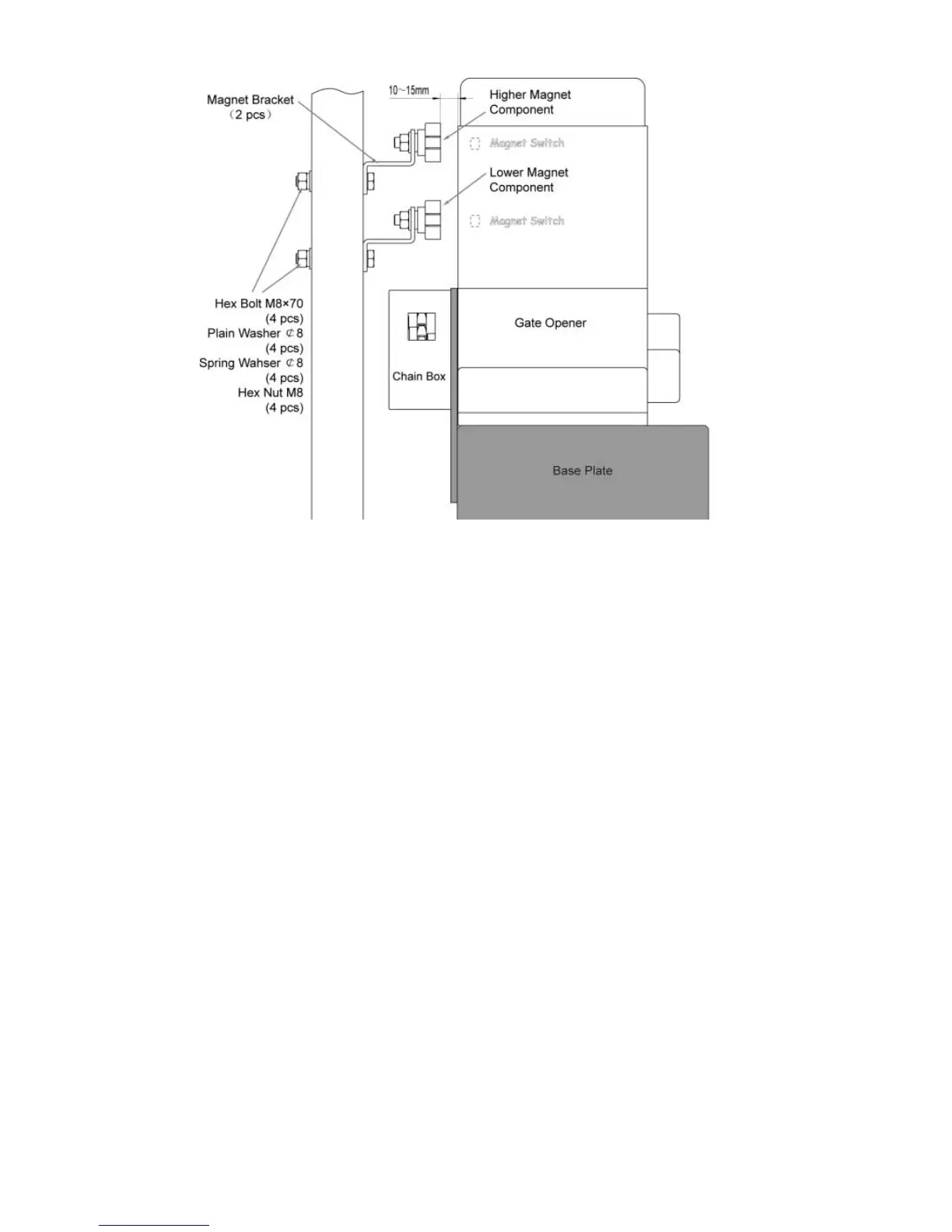
The RED wire of the limit switches should be connected into the “11” terminal.
The BLACK wire of the limit switches should be connected into the “10” terminal.
The YELLOW wire of the limit switches should be connected into the “9” terminal.
4. Alarm Lamp
One wire of the alarm lamp should be connected into the “4” terminal, another should be connected into the
“5” terminal.
5. PhotocellNormal Open
Use a 2-core cable to connect the “+ ~” terminal of the photocell’s emitter to the “12” terminal, the “- ~”
terminal to the “13” terminal. Also the “+ ~” and “- ~” terminals of the photocell’s receiver should be
connected to the “12” and “13” terminals in parallel.
Use another 2-core cable to connect the “NO” terminal of the receiver to the “14” terminal, the “COM”
terminal to the “15” terminal.
6. Push Button
The push button should be wired to the “15” and “16” terminals. The gate operator works alternately by
pushing the button (open-stop-close-stop-open).

Related product manuals