EasyManua.ls Logo

LS ELECTRIC XEC-DN32H - Point Transistor Output Module (Source Type)

LS ELECTRIC XEC-DN32H
258 pages
Print Icon
To Next Page IconTo Next Page
To Next Page IconTo Next Page
To Previous Page IconTo Previous Page
To Previous Page IconTo Previous Page
Loading...
Chapter 7. Input/Output Specifications
7-25
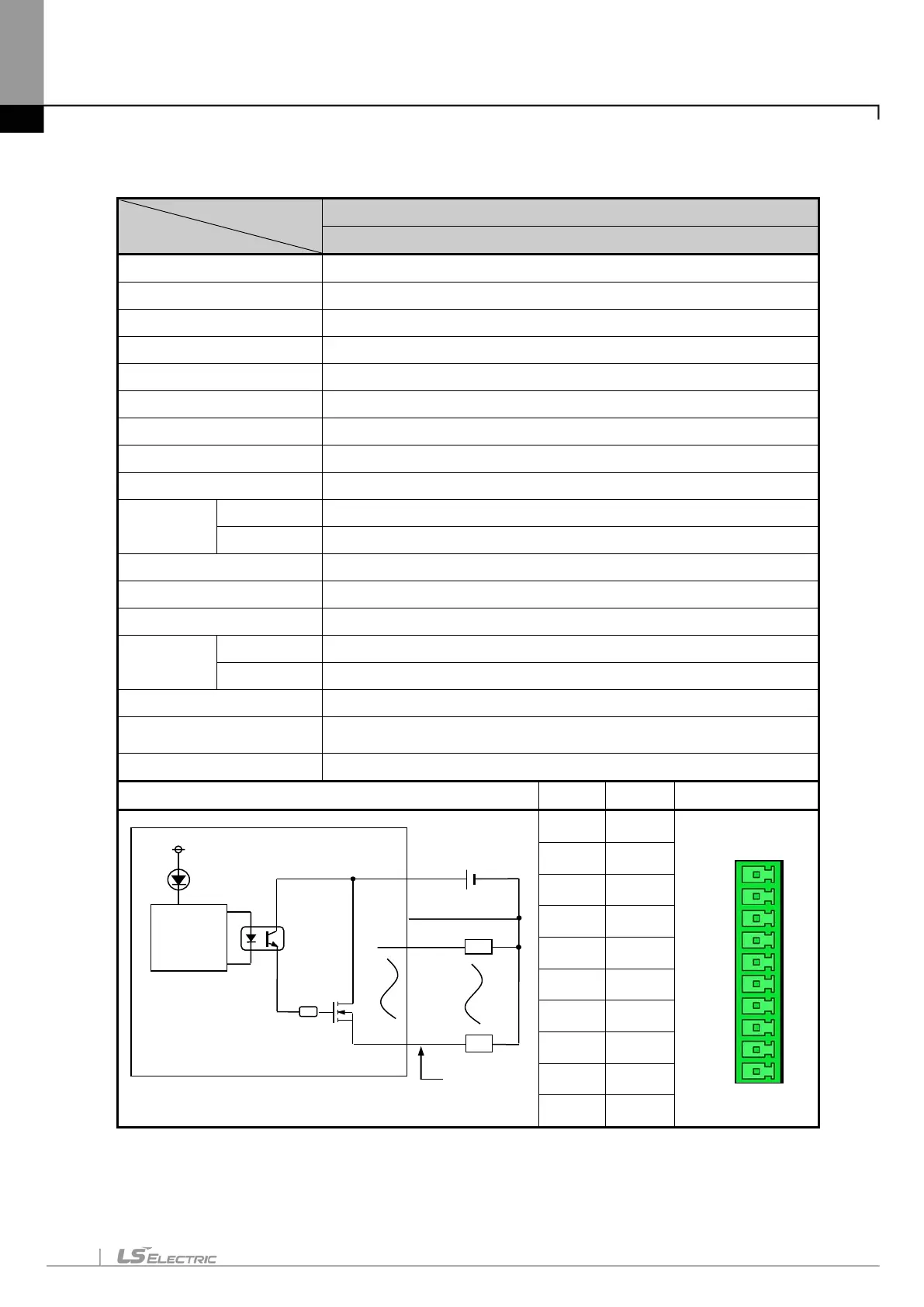
7.5.6 8 point transistor output module (Source type)
Model
Specification
Transistor output module
XBE-TP08A
Output point 8 point
Insulation method Photo coupler insulation
Rated load voltage DC 12 / 24V
Load voltage range DC 10.2 ~ 26.4V
Max. load voltage 0.5A / 1 point
Off leakage current 0.1 or less
Max. inrush current 4A / 10 or less
Max. voltage drop (On) DC 0.4V or less
Surge absorber Zener Diode
Response
time
Off On
1 or less
On Off
1 or less (Rated load, resistive load)
Common method 8 point / COM
Proper cable size Stranded wire 0.3~0.75 (external diameter 2.8 or less)
Current consumption 40 (when all point On)
External
power
supply
Voltage
DC12/24V ± 10% (ripple voltage 4 Vp-p or less)
Current 10 or less (DC24V connection)
Operation indicator Output On, LED On
External connection
method
10 pin connector
Weight 30g
Circuit configuration No.
Contact
Type
TB01 0
TB02 1
TB03 2
TB04 3
TB05 4
TB06 5
TB07 6
TB08 7
TB09 COM
TB10 0V
TB01
TB02
TB03
TB04
TB05
TB06
TB07
TB08
TB09
TB10
DC5V
R
Internal
circuit
Terminal block no.
TB09
TB10
TB01
TB08

Table of Contents