EasyManua.ls Logo

LSIS XBC-DR30SU - Point Transistor Output Module (Source Type)

LSIS XBC-DR30SU
384 pages
Print Icon
To Next Page IconTo Next Page
To Next Page IconTo Next Page
To Previous Page IconTo Previous Page
To Previous Page IconTo Previous Page
Loading...
Chapter 7 Input/Output Specifications
7-68
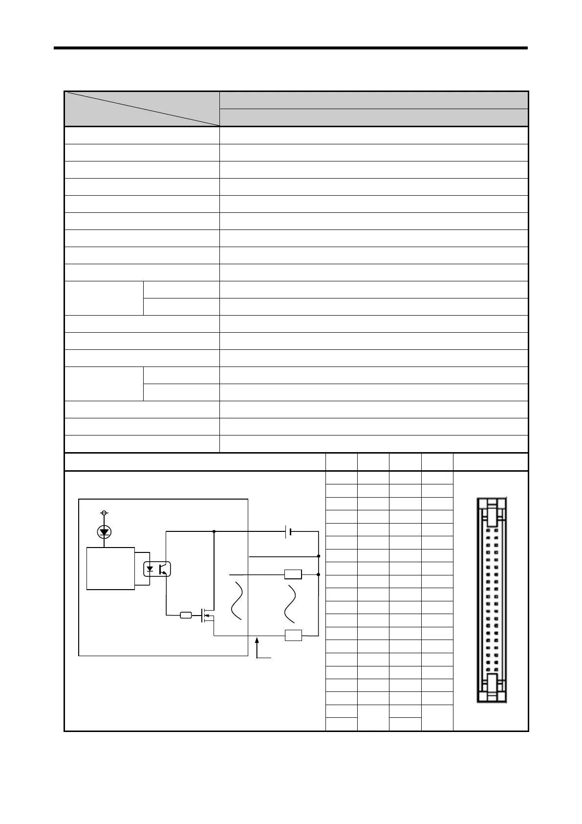
7.5.9 32 point transistor output module (Source type)
Model
Specification
Transistor output module
XBE-TP32A
Output point
32 point
Insulation method
Photo coupler insulation
Rated load voltage
DC 12 / 24V
Load voltage range
DC 10.2 ~ 26.4V
Max. load voltage
0.2A / 1 point, 2A / 1COM
Off leakage current
0.1 or less
Max. inrush current
4A / 10 or less
Max. voltage drop (On)
DC 0.4V or less
Surge absorber
Zener Diode
Response time
Off On
1 or less
On Off
1 or less (Rated load, resistive load)
Common method
32 point / COM
Proper cable size
0.3
Current consumption
120 (When all outputs are on)
External power
Voltage
DC12/24V 10% (ripple voltage 4 Vp-p or less)
Current
20 or less (connecting DC24V)
Operation indicator
LED On when output On
External connection method
40 pin connector
Weight
60g
Circuit configuration
No.
Contact
No.
Contact
Type
B20
00
A20
10
B19
01
A19
11
B18
02
A18
12
B17
03
A17
13
B16
04
A16
14
B15
05
A15
15
B14
06
A14
16
B13
07
A13
17
B12
08
A12
18
B11
09
A11
19
B10
0A
A10
1A
B09
0B
A09
1B
B08
0C
A08
1C
B07
0D
A07
1D
B06
0E
A06
1E
B05
0F
A05
1F
B04
NC
A04
NC
B03
NC
A03
NC
B02
COM
A02
0V
B01
A01
B20
B19
B18
B17
B16
B15
B14
B13
B12
B11
B10
B09
B08
B07
B06
B05
B04
B03
B02
B01
A20
A19
A18
A17
A16
A15
A14
A13
A12
A11
A10
A09
A08
A07
A06
A05
A04
A03
A02
A01
DC5V
DC12/24V
R
Internal
circuit
L
Connector
No.
LED
B02,B01
L
A02,A01
B20
A05
www.behaotomasyon.com
www.behaotomasyon.com

Table of Contents

Related product manuals