EasyManua.ls Logo

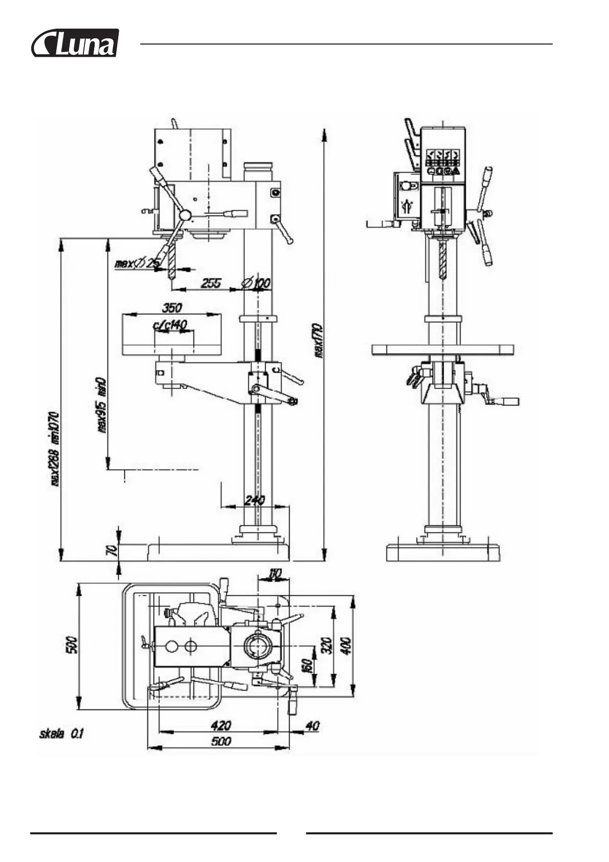
Luna MD30B - Column Dimensions; Column Model Drawings

Luna MD30B
Print Icon
To Next Page IconTo Next Page
To Next Page IconTo Next Page
To Previous Page IconTo Previous Page
To Previous Page IconTo Previous Page
Loading...
38
DIMENSION SKETCH COLUMN MODEL

Related product manuals