EasyManua.ls Logo

Lunos e2 mini - Page 2

Lunos e2 mini
8 pages
Print Icon
To Next Page IconTo Next Page
To Next Page IconTo Next Page
To Previous Page IconTo Previous Page
To Previous Page IconTo Previous Page
Loading...
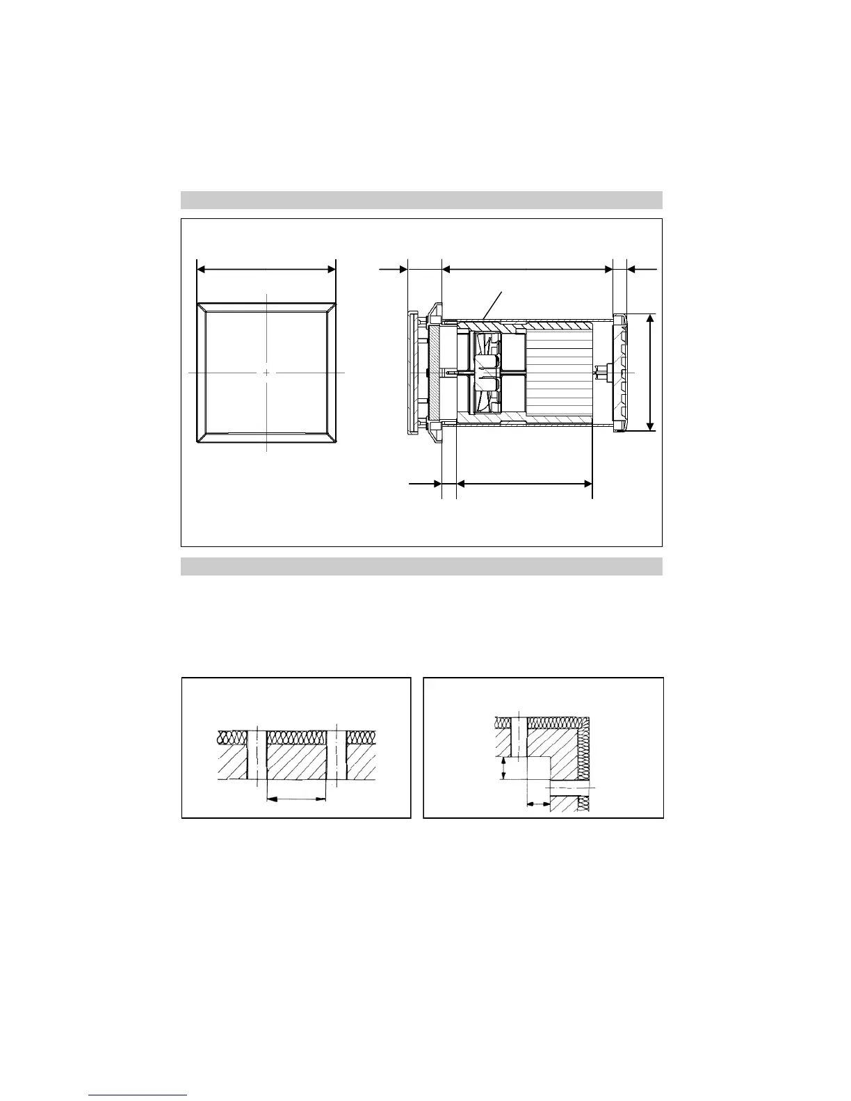
Dimension drawing (all dimensions in mm)
Installation Position
2
1m
Decentralized fans with heat recovery of the type e² mini only function in pairs in alternating operation.
One device operates for 50 s in supply air mode, the other for 50 s in exhaust air mode at the respec-
tive flow rate set. After this, the direction of air flow is changed. This ensures that the total flow rate
supplied is the same as the total air flow ejected. If a push-pull device pair is installed and operated in
two different rooms in the apartment, a sufficient volume of air must always be ensured between these
two rooms via adequately large dimensioned overflow air passages.
Minimum distance recommended when in-
stalling a device pair in one wall:
Minimum distance recommended when in-
stalling a device pair at a right angle:
1m
1m
136 34 min. 167 14
15 133
Ø115
Assembly tube DI 100 mm,
DA 104 mm
Dimensions in mm
Do not position the device above sensitive furniture, surfaces or pictures, the wall beneath the device
should remain ‚unused‘.
Do not position the device above or near room thermostats.

Related product manuals